Проект дома «ОПТИМА‑4»

Мечтаете о уютном загородном доме, где хватит места всей семье — и для отдыха, и для приёма гостей? Проект «ОПТИМА‑4» создан именно для вас! Разберём, почему эта планировка — отличный выбор для дачи или загородного участка.
Компактно, но функционально
На первый взгляд, общая площадь в 80,46 м2 может показаться небольшой — но продуманная планировка превращает каждый метр в полезное пространство. При этом площадь застройки составляет 110,4 м2, что позволяет грамотно организовать придомовую территорию: разместить зону отдыха, небольшой сад или детскую площадку.
Два этажа — максимум возможностей
Двухэтажная конструкция даёт сразу несколько преимуществ:
- Зонирование пространства. На первом этаже удобно расположить общие зоны — гостиную, кухню, прихожую, а на втором — приватные помещения.
- Экономия места на участке. За счёт вертикального развития дом занимает меньше площади, оставляя больше пространства для ландшафта.
- Панорамные виды. Верхний этаж открывает дополнительные возможности для любования природой — можно обустроить балкон или просто наслаждаться пейзажами из окон спален.
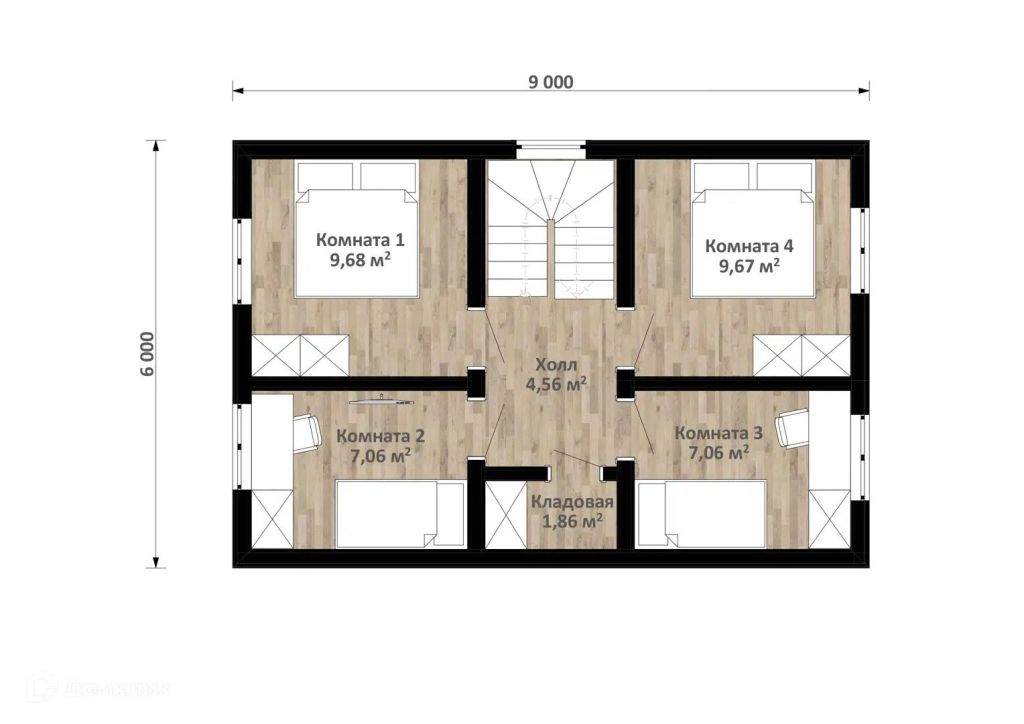
Четыре спальни — всем найдётся место
Ключевое преимущество проекта — целых 4 спальни. Это делает дом идеальным для:
- большой семьи;
- приёма родственников и друзей на выходные;
- организации гостевых комнат;
- выделения отдельных зон для детей и взрослых.
Даже на даче такой запас спальных мест пригодится: больше не придётся выбирать, кого пригласить в гости, — места хватит всем!

Комфортная высота потолков
Высота потолков от 2,4 м создаёт ощущение простора и не «давит» на жильцов. В таких помещениях:
- легче дышать;
- проще организовать освещение;
- появляется возможность использовать дизайнерские приёмы с многоуровневыми потолками или подвесными светильниками.
Один санузел — рациональное решение
В проекте предусмотрен 1 санузел, что оптимально для загородного дома:
- снижает затраты на строительство и коммуникации;
- экономит полезную площадь;
- достаточно для семьи из 4–5 человек и гостей при периодическом использовании.
При желании на первом этаже можно предусмотреть гостевой туалет — это легко реализовать за счёт небольшого изменения планировки.

Почему «ОПТИМА‑4» подходит именно для дачи?
- Быстрый прогрев. Небольшая площадь позволяет быстро прогреть дом весной или осенью — идеально для поездок на выходные.
- Минимум ухода. Компактные размеры сокращают время на уборку и обслуживание — больше времени на отдых!
- Гибкость использования. На первом этаже можно организовать мастерскую, зону для заготовок или хранилище садового инвентаря.
- Экономичность. Низкие затраты на отопление и содержание по сравнению с большими коттеджами.
- Уютная атмосфера. Дом не кажется пустым даже при частичном заполнении — в нём комфортно отдыхать вдвоём или семьёй.
Проект «ОПТИМА‑4» — это баланс цены, площади и комфорта. Он подойдёт тем, кто ценит практичность, не готов переплачивать за лишние метры, но хочет иметь просторный и функциональный дом для жизни и отдыха на природе.

Разместить/удалить пост
Редакция: 8 (812) 962 27 47
Рекламный: 8 981 88 585 88
ООО/ИП: оплата по договору
Для самозанятых: Робокасса
E-mail: evd@ms365.ru




