Проект двухэтажного дома «Райт»

Дорогие друзья с «Фазенды.рф»! Представляем вам продуманный проект двухэтажного дома «Райт» — идеальное решение для тех, кто мечтает о просторном и функциональном загородном жилище.
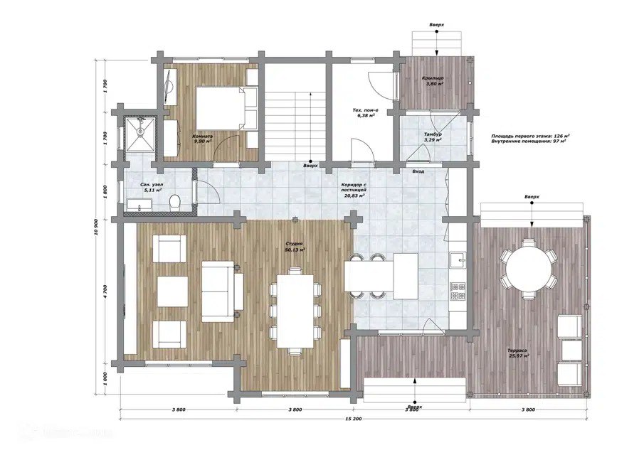
Ключевые характеристики
- Общая площадь: 204 м2;
- Площадь застройки: 224,4 м2;
- Высота потолков: от 2,8 м (создаёт ощущение простора и свободы);
- Количество этажей: 2;
- Спальни: 4 (достаточно места для большой семьи или гостей);
- Санузлы: 2 (удобство и приватность для всех жильцов).

Почему стоит выбрать проект «Райт»?
- Пространство без компромиссов
Общая площадь в 204 м2 позволяет разместить всё необходимое: от уютных спален до просторной гостиной. Высота потолков от 2,8 м визуально расширяет пространство и наполняет его воздухом. - Функциональность на двух этажах
- Первый этаж: идеальная зона для общего времяпрепровождения. Здесь можно расположить гостиную, кухню-столовую, гостевой санузел и, при желании, кабинет или зону отдыха.
- Второй этаж: приватная территория с четырьмя спальнями и вторым санузлом. Каждый член семьи получит своё личное пространство.
- Первый этаж: идеальная зона для общего времяпрепровождения. Здесь можно расположить гостиную, кухню-столовую, гостевой санузел и, при желании, кабинет или зону отдыха.
- Оптимальная площадь застройки
224,4 м2 — это баланс между компактностью и удобством. Дом не займёт весь участок, оставив место для сада, террасы или зоны отдыха. - Комфорт для семьи
- Четыре спальни — хватит для большой семьи или приёма гостей.
- Два санузла исключают утренние очереди и добавляют удобства в повседневную жизнь.
- Высокие потолки создают атмосферу лёгкости и простора.

Для кого этот проект?
Дом «Райт» подойдёт:
- семьям с детьми, ценящим комфорт и приватность;
- тем, кто планирует часто принимать гостей;
- любителям просторных, но продуманных планировок;
- тем, кто хочет совместить уют загородного дома с современными стандартами жилья.
Итог
Проект «Райт» — это не просто дом, а пространство для жизни, где каждая деталь работает на ваш комфорт. Просторные комнаты, удобная планировка и гармоничные пропорции делают его отличным выбором для тех, кто ищет идеальное сочетание функциональности и эстетики.
Если вы мечтаете о доме, где будет комфортно всей семье, «Райт» может стать вашим идеальным решением!

Разместить/удалить пост
ООО/ИП оплата по договору
Самозанятые: РОБОКАССА
Редакция: 8 (812) 962 27 47
Рекламный: 8 981 88 585 88
Почта: evd@ms365.ru




