Проект «Лесная панорама»: одноэтажный дом для комфортной загородной жизни
Ищете идеальный дом для дачи или постоянного проживания за городом? Проект «Лесная панорама» — продуманное решение для тех, кто ценит простор, функциональность и гармонию с природой.
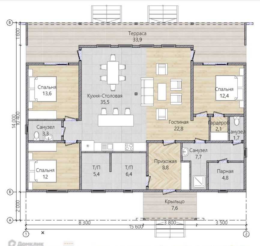
Ключевые характеристики
- Общая площадь: 178 м2.
- Площадь застройки: 178 м2.
- Высота потолков: от 2,8 м.
- Количество этажей: 1.
- Спальни: 3.
- Санузлы: 3.

Почему этот проект отлично подходит для дачи или загородного дома?
- Одноэтажная планировка — максимум удобства
Отсутствие лестниц делает дом комфортным для всех:- семей с маленькими детьми;
- пожилых родственников;
- людей с ограниченными возможностями.
Всё необходимое — на одном уровне, без лишних перемещений.
- Простор и свет
Потолки высотой от 2,8 м создают ощущение воздушности, а большие окна (при правильном расположении) наполняют помещения естественным светом. Это особенно ценно для загородного дома, где важно чувствовать связь с природой. - Три спальни — место для каждого
В доме комфортно разместятся:- семья из 4–5 человек;
- гости, приезжающие на выходные;
- пожилые родственники, желающие жить рядом, но автономно.
Каждая спальня может стать личным убежищем для отдыха.
- Три санузла — практичность в быту
Нет очередей по утрам, удобно принимать гостей. Один санузел можно расположить рядом с общей зоной, другой — в блоке со спальнями, третий — при входе (например, для гостей или после работы в саду). - Оптимальная площадь — баланс комфорта и ухода
178 м2 — это достаточно, чтобы:- разместить все необходимые зоны (кухня, гостиная, спальни, санузлы, гардеробные);
- не перегружать себя уборкой и обслуживанием, как в больших коттеджах.
Дом подходит и для постоянного проживания, и для сезонного использования.
- Гибкость планировки
Пространство можно адаптировать под свои нужды:- одну из спален превратить в кабинет или игровую;
- организовать зону для хобби (мастерскую, библиотеку);
- выделить место для хранения инвентаря (садовых инструментов, спортивного снаряжения).
- Эстетика и уют
Одноэтажная архитектура органично вписывается в загородный ландшафт. Дом не выглядит громоздким, а его лаконичность подчёркивает природную красоту участка.
Для кого этот проект?
- Семьи с детьми — безопасность и удобство одноэтажной планировки.
- Любители природы — возможность создать «дом-террасу» с большими окнами и выходом в сад.
- Те, кто ценит практичность — три санузла и три спальни решают бытовые вопросы без компромиссов.
- Пожилые люди — отсутствие лестниц и логичная организация пространства.
«Лесная панорама» — это не просто дом, а пространство для жизни, где каждый квадратный метр работает на ваш комфорт. Проект сочетает современные стандарты удобства с атмосферой загородной идиллии.

Разместить/удалить пост
ООО/ИП оплата по договору
Самозанятые: РОБОКАССА
Редакция: 8 (812) 962 27 47
Рекламный: 8 981 88 585 88
Почта: evd@ms365.ru




