Проект двухэтажного дома К176: простор и комфорт для загородной жизни
Ищете идеальный дом для дачи или постоянного проживания за городом? Проект К176 — продуманное решение для тех, кто ценит комфорт, функциональность и рациональную организацию пространства. Рассмотрим, почему этот проект отлично подойдёт для загородного участка.

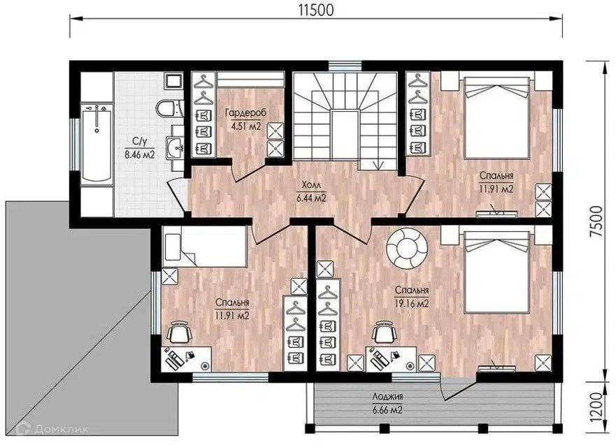
Ключевые параметры
- Общая площадь: 176 м² — достаточно места для большой семьи и гостей.
- Площадь застройки: 99 м² — дом не займёт весь участок, останется пространство для сада, зоны отдыха или хозпостроек.
- Высота потолков: от 3 м — создаёт ощущение простора и наполняет помещения воздухом.
- Спальни: 4 — комфортно разместятся все члены семьи и приезжающие родственники.
- Санузлы: 2 — удобство для большой семьи без утренних очередей.

Почему К176 идеален для дачи и загородного дома?
- Оптимальная площадь
176 м² — это «золотая середина»: дом достаточно просторный для семейного проживания, но не избыточный, что экономит затраты на отопление и обслуживание. Для дачи это особенно важно: вы платите только за то пространство, которое реально используете. - Четыре спальни — гибкость планировки
- 2–3 спальни для постоянной жизни семьи.
- Оставшиеся комнаты — гостевые для приезжающих друзей или родственников.
- Возможность организовать кабинет, детскую игровую или хобби‑зону.
- Два санузла — комфорт без компромиссов
На двух этажах по санузлу — это:- удобство для утренних сборов;
- отсутствие очередей в пиковые часы;
- гигиеничность (отдельный санузел на первом этаже для гостей).
- Высокие потолки — атмосфера простора
Потолки от 3 м:- визуально увеличивают пространство;
- улучшают вентиляцию и освещённость;
- позволяют использовать стильные интерьерные решения (например, подвесные светильники или открытые балки).
- Компактная площадь застройки — свобода для участка
99 м² под дом — это:- место для сада, огорода или цветников;
- зона для барбекю, беседки или детской площадки;
- возможность разместить гараж, баню или хозблок без ущерба для ландшафта.
- Двухэтажная планировка — разумная зонирование
- Первый этаж: общая зона (гостиная, кухня, столовая), гостевой санузел, возможно, кабинет или гостевая спальня.
- Второй этаж: приватная зона (спальни, основной санузел).
Такое разделение обеспечивает баланс между семейным общением и личным пространством.
- Универсальность для разных сценариев
- Дача для сезонного проживания: компактные размеры упрощают консервацию на зиму, а четыре спальни вместят всю семью на выходные.
- Дом для постоянного проживания: продуманная планировка и два санузла делают быт комфортным даже в холодное время года.
- Гостевой дом: возможность сдавать часть помещений или принимать большие компании.

Итог
Проект К176 — это гармония функциональности и уюта. Он подходит:
- для семей с детьми (много спален, простор для игр);
- для любителей принимать гостей (гостевые комнаты и два санузла);
- для тех, кто хочет совместить дачу и постоянное жильё (оптимальная площадь и зонирование).
Вы получаете дом, где каждый квадратный метр работает на ваш комфорт, а участок остаётся живым пространством для отдыха и творчества.


Разместить/удалить пост
ООО/ИП оплата по договору
Самозанятые: РОБОКАССА
Редакция: 8 (812) 962 27 47
Рекламный: 8 981 88 585 88
Почта: evd@ms365.ru




