Проект двухэтажного дома «Прованс»: уют и комфорт для дачи или загородного дома

Мечтаете о доме, где будет комфортно всей семье — и летом на даче, и в загородной жизни круглый год? Проект «Прованс» создан именно для вас! Он сочетает очарование французского стиля с продуманной планировкой — и идеально подходит для тех, кто ценит простор, функциональность и атмосферу домашнего уюта.
Почему «Прованс» — отличный выбор для загородного участка?
1. Оптимальные размеры без излишеств
Дом площадью 163 м2 при площади застройки 120 м2 не займёт много места на участке — останется пространство для сада, огорода, зоны отдыха или детской площадки. При этом внутри достаточно места для большой семьи или приёма гостей.
2. Простор и свет
Высота потолков от 2,5 м создаёт ощущение свободы и не «давит» даже в небольших комнатах. Пространство кажется более воздушным, а вентиляция — лучше.
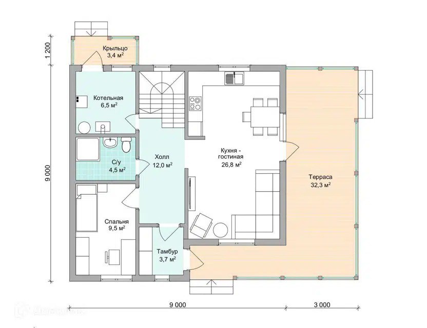
3. Удобная планировка на два этажа
Двухэтажная конструкция позволяет грамотно зонировать пространство:
- первый этаж — для общего времяпрепровождения (кухня, гостиная, гостевая зона);
- второй этаж — для отдыха и уединения (спальни, санузлы).
Так шумные дневные дела не будут мешать спокойному сну.
4. Достаточно спален для большой семьи
Четыре спальни — это:
- отдельные комнаты для родителей и детей;
- гостевая комната для родственников или друзей;
- возможность организовать кабинет, творческую мастерскую или спортзал, если нужно.
Такой дом подойдёт и для постоянного проживания, и для сезонного отдыха с семьёй и близкими.
5. Два санузла — без очередей
Два санузла — практичное решение для семьи из 4–6 человек. Особенно это оценят те, кто сталкивался с утренними очередями в ванной в разгар дачного сезона!
6. Стиль, который не выходит из моды
Архитектура в стиле прованс — это:
- пастельные тона фасадов;
- натуральные материалы или их качественная имитация;
- большие окна, пропускающие много света;
- ставни, декоративные элементы, крыльцо или терраса (в зависимости от комплектации).
Такой дом выглядит уютно и гармонично вписывается в загородный пейзаж — будь то сосновый лес, березовая роща или участок с фруктовым садом.
7. Гибкость под ваши нужды
Планировка легко адаптируется:
- на первом этаже можно сделать просторную кухню‑гостиную с выходом на террасу;
- одну из спален на втором этаже превратить в детскую игровую или библиотеку;
- выделить уголок под хранение инвентаря, заготовок или спортивного снаряжения.

Кому подойдёт дом «Прованс»?
- Семьям с детьми — много комнат, безопасная планировка, место для игр на участке.
- Любителям принимать гостей — достаточно спален и общая зона для дружеских посиделок.
- Тем, кто хочет переехать за город — дом рассчитан на круглогодичное проживание.
- Ценителям эстетики — стиль прованс создаёт атмосферу тепла, отдыха и душевного комфорта.

Проект «Прованс» — это не просто стены и крыша. Это пространство, где рождаются семейные традиции, пахнет свежей выпечкой по утрам, а вечера проходят в кругу близких людей. Постройте свой уголок счастья за городом — выберите дом, в котором хочется жить!
Хотите узнать больше о планировке или вариантах отделки? Напишите нам — мы с радостью поможем воплотить вашу мечту в реальность!


Разместить/удалить пост
ООО/ИП оплата по договору
Самозанятые: РОБОКАССА
Редакция: 8 (812) 962 27 47
Рекламный: 8 981 88 585 88
Почта: evd@ms365.ru




