Проект двухэтажного дома «Абрамцево D 155»: простор и уют для большой семьи

Привет, дорогие читатели «Фазенды.рф»! Сегодня расскажем о продуманном проекте загородного дома, который отлично подойдёт для семейного проживания — «Абрамцево D 155».
Почему стоит обратить внимание на этот проект?
«Абрамцево D 155» — это гармоничное сочетание функциональности, простора и современного дизайна. Дом рассчитан на большую семью: здесь достаточно места для отдыха, работы и приёма гостей. Рассмотрим ключевые особенности.
Основные характеристики
- Общая площадь: 155 м2.
- Площадь застройки: 104 м2.
- Количество этажей: 2.
- Высота потолков: от 3 м — создаёт ощущение простора и свободы.
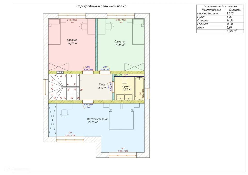
- Спальни: 4 — хватит места для всех членов семьи и гостей.
- Санузлы: 2 — удобство и комфорт в повседневной жизни.

Что вы получаете в планировке?
Первый этаж продуман так, чтобы стать центром семейной жизни:
- просторная гостиная — идеальное место для встреч с друзьями и семейных вечеров;
- кухня-столовая, где удобно готовить и принимать пищу в кругу близких;
- гостевой санузел — практичное решение для повседневного комфорта;
- технические и хозяйственные помещения, позволяющие держать всё необходимое под рукой.
Второй этаж отведён под приватную зону:
- 4 уютные спальни — каждая комната достаточно просторна для комфортного отдыха;
- второй санузел — дополнительное удобство для всех жильцов.

Преимущества проекта
- Простор и свет. Высокие потолки (3 м и более) и продуманная планировка создают ощущение свободы и наполняют помещения естественным светом.
- Функциональность. Каждая зона имеет своё назначение, при этом пространство используется максимально эффективно.
- Комфорт для большой семьи. 4 спальни и 2 санузла позволяют комфортно разместиться всем членам семьи, не стесняя друг друга.
- Современный стиль. Лаконичный дизайн фасада и внутренняя планировка соответствуют актуальным тенденциям загородной архитектуры.
Для кого этот дом?
Проект «Абрамцево D 155» идеально подойдёт:
- семьям с детьми, которые ценят простор и удобство;
- тем, кто любит принимать гостей и устраивать семейные праздники;
- людям, желающим организовать домашнее рабочее место без ущерба для жилого пространства.
Итог
«Абрамцево D 155» — это не просто дом, а полноценное пространство для жизни, где каждый найдёт свой уголок уюта. Общая площадь в 155 м2, 4 спальни и 2 санузла делают его отличным выбором для большой и дружной семьи.
Если вы мечтаете о загородном доме, где хватит места всем, — присмотритесь к этому проекту. Он сочетает в себе всё, что нужно для комфортной жизни на природе!

Разместить/удалить пост
ООО/ИП оплата по договору
Самозанятые: РОБОКАССА
Редакция: 8 (812) 962 27 47
Рекламный: 8 981 88 585 88
Почта: evd@ms365.ru




