Проект «Статус: идеальный дом для дачи

Мечтаете о комфортном загородном доме, где можно отдохнуть от городской суеты, провести выходные с семьёй или даже перебраться на постоянное жительство? Проект «Статус» — именно то, что вам нужно! Разберём, почему эта планировка отлично подойдёт для дачи или загородного дома.
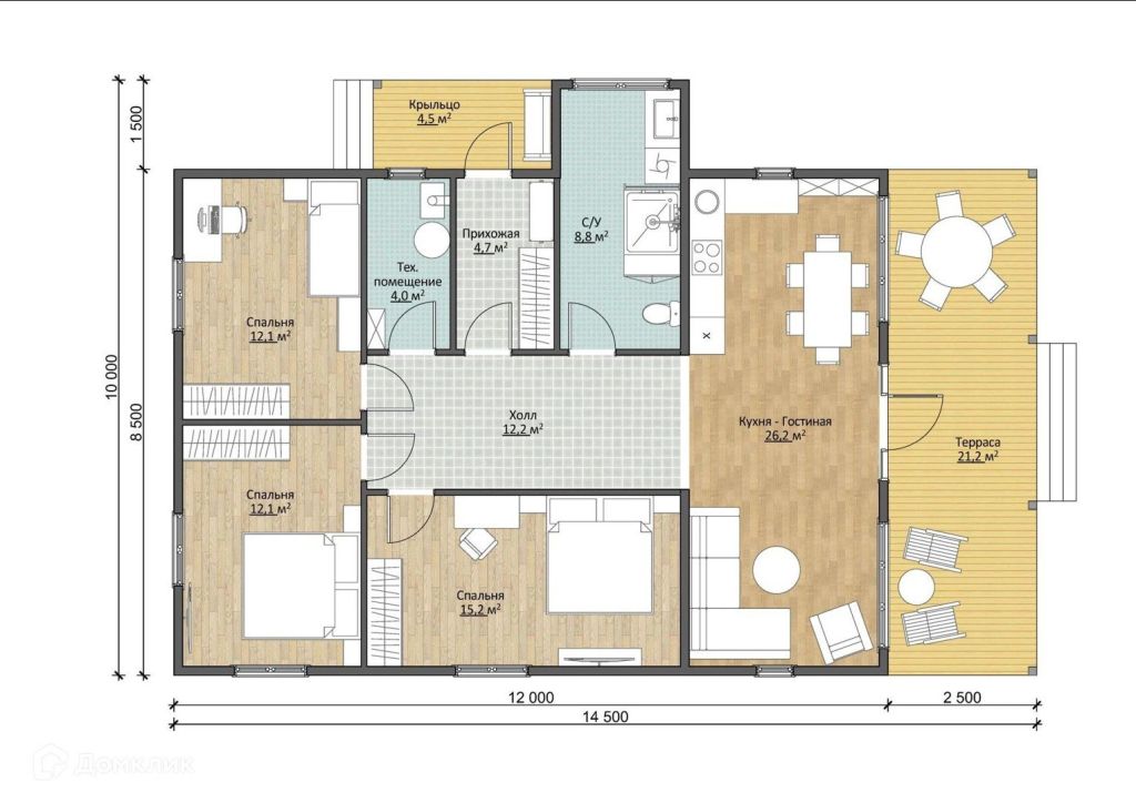
Основные параметры
- Общая площадь: 121,2 м2.
- Площадь застройки: 145 м2.
- Этажность: 1 этаж.
- Спальни: 3 комнаты.
- Санузлы: 1.
Почему «Статус» подходит для загородного дома?
1. Оптимальные габариты для участка
Размеры дома — 8,5×14,5 м — позволяют разместить его даже на стандартном дачном участке. Компактность не идёт в ущерб функциональности: дом не занимает много места, оставляя простор для сада, огорода, зоны отдыха или детской площадки.
2. Одноэтажная планировка — максимум удобства
Отсутствие лестниц — важное преимущество для:
- семей с детьми;
- пожилых людей;
- тех, кто ценит комфорт и безопасность.
Перемещаться по дому легко в любое время года, а уборка становится проще.
3. Три спальни — место для всех
Три отдельные комнаты позволяют комфортно разместить:
- хозяев;
- детей или внуков;
- гостей на выходные.
Даже если вы планируете использовать дом как дачу, дополнительные спальни пригодятся для приёма родственников и друзей.
4. Разумная площадь — экономия без компромиссов
121,2 м2 — золотая середина:
- достаточно пространства для жизни, но не слишком много, чтобы тратить силы на уборку;
- сниженные затраты на отопление и обслуживание по сравнению с большими коттеджами;
- возможность обустроить все необходимые зоны без излишеств.
5. Универсальность: дача или ПМЖ?
Проект «Статус» легко адаптировать под любые нужды:
- Как дача: дом идеален для сезонного проживания. Летом здесь комфортно всей семьёй, а зимой его проще прогревать при редких визитах.
- Как дом для постоянного проживания: продуманная планировка и достаточная площадь позволяют жить здесь круглый год.
6. Простор для творчества снаружи
Площадь застройки — 145 м2, а общая площадь дома — 121,2 м2. Разница даёт возможность:
- организовать просторную террасу или веранду для летних обедов;
- сделать крытое крыльцо, защищающее вход от дождя и снега;
- оставить место для гаража или хозблока рядом с домом.
7. Один санузел — рациональное решение
Для одноэтажного дома с тремя спальнями один санузел — оптимальный вариант. Это:
- снижает затраты на коммуникации;
- экономит полезную площадь;
- вполне достаточно для семьи из 4–5 человек, особенно если дом используется как дача.

Кому подойдёт проект «Статус»?
- Семьям с детьми — безопасно, просторно, есть отдельные комнаты.
- Пожилым людям — нет лестниц, всё под рукой.
- Тем, кто ищет дачу для отдыха — дом готов к сезонному проживанию, но при желании его легко перевести на круглогодичный режим.
- Ценителям компактности — ничего лишнего, только нужные зоны.
Проект «Статус 8,5×14,5» — это баланс практичности, комфорта и разумных затрат. Он создан для тех, кто хочет получить уютный загородный дом без переплат за ненужные метры. Здесь хватит места для семьи, гостей и любимых хобби, а свободное пространство вокруг дома станет основой для вашего идеального ландшафта!

Разместить/удалить пост
Редакция: 8 (812) 962 27 47
Рекламный: 8 981 88 585 88
ООО/ИП: оплата по договору
Для самозанятых: Робокасса
E-mail: evd@ms365.ru




