Проект «Дания 2.0»: одноэтажный дом, где всё по‑датски уютно (и чуть‑чуть эпично)
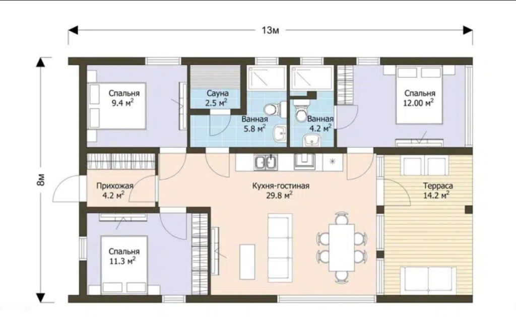
Представьте дом, в котором вы не заблудитесь, не устанете подниматься по лестницам и при этом почувствуете себя как в скандинавском триумфе уюта. Это «Дания 2.0» — одноэтажный шедевр, где 93,4 м² комфорта упакованы в 104 м² застройки. То есть даже снаружи видно: тут всё продумано!

Что внутри?
- Три спальни — хватит, чтобы разместить семью, гостей и… ну, того кота, который вечно требует отдельную комнату.
- Два санузла — потому что утренние очереди в ванную это не про нас. Здесь каждый может спокойно почистить зубы и помечтать о завтраке.
- Потолки от 4 м — да, это почти мини‑собор. Можете:
- устраивать домашние концерты с хором из трёх человек;
- запускать воздушного змея внутри;
- просто чувствовать себя великаном (или хотя бы чуть выше обычного).

Почему «Дания 2.0»?
Потому что классика — это хорошо, но мы добавили щепотку современности. Здесь нет лишних этажей (один — и точка!), зато есть всё, что нужно для жизни без суеты:
- простор без «лабиринтов»;
- свет, воздух и ощущение, что вы живёте не в коробке, а в стильном пространстве;
- и, конечно, скандинавский дух: уют, функциональность и лёгкий намёк на «хюгге» (даже если вы пока не знаете, что это).
Короче, «Дания 2.0» — это дом, в котором хочется:
- просыпаться с улыбкой;
- звать друзей на ужин;
- и иногда просто стоять посреди комнаты, глядя в потолок, и думать: «Ну вот, опять я счастлив».
Добро пожаловать в одноэтажную идиллию!

Разместить/удалить пост
ООО/ИП оплата по договору
Самозанятые: РОБОКАССА
Редакция: 8 (812) 962 27 47
Рекламный: 8 981 88 585 88
Почта: evd@ms365.ru




