Источник: https://my.domclick.ru
Проект Трёхмодульный Дом 58м2
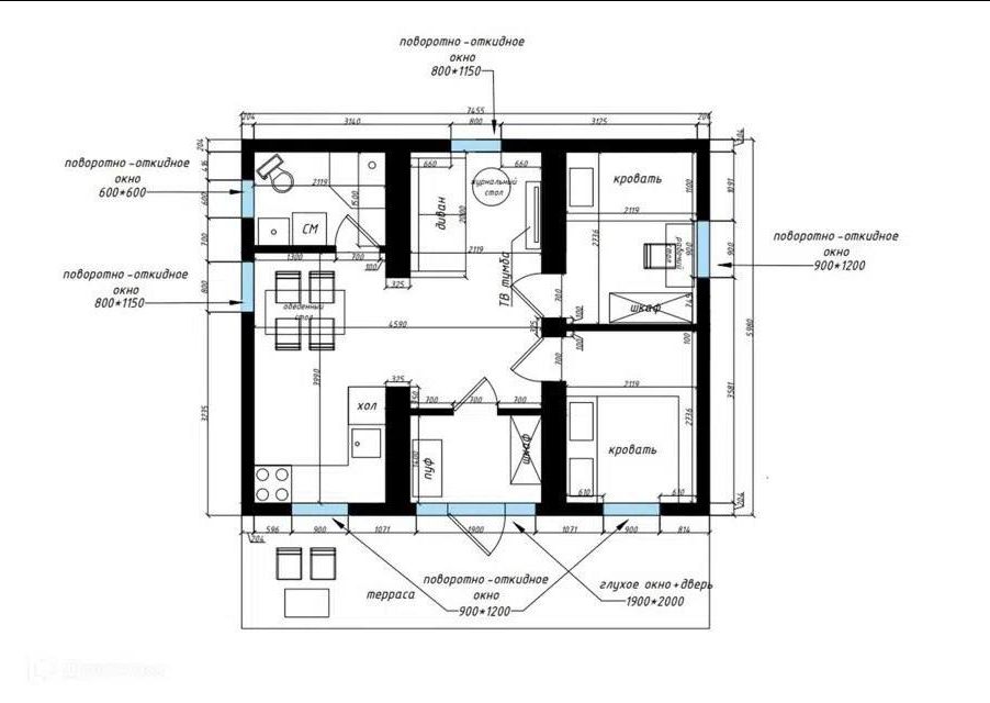
Общая площадь дома – 44,61 м²
Площадь застройки – 58 м²
Высота потолков – от 2,5 м
Количество этажей – 1
Количество спален – 2
Количество санузлов – 1


Истина на ладони:
Умение ждать — это искусство превращать время в союзника.
– Рю Мураками
Разместить информацию:
В рабочие дни: с 11-19 часов
WhatsApp/Telegram/Звонок
МТС: +7 (981) 88-585-88
Автор/редактор: Евстропов
Владимир Дмитриевич
E-mail: evd@фазенда.рф
Для ООО – оплата по договору.
Для ИП, самозанятых и физ.лиц
удобная оплата через робокассу –
на сайте ООО:“МЕДИА-СЕРВИС”
(Собственник: Фазенда.рф)
Стоимость размещения:ЗДЕСЬ!
Деятельность Медиа-Сервис
Проверить: “Медиа-Сервис:
О нас: “За честный бизнес”
О нас: “List-Org.com”
О нас: “Rusprofile




