Источник: https://my.domclick.ru
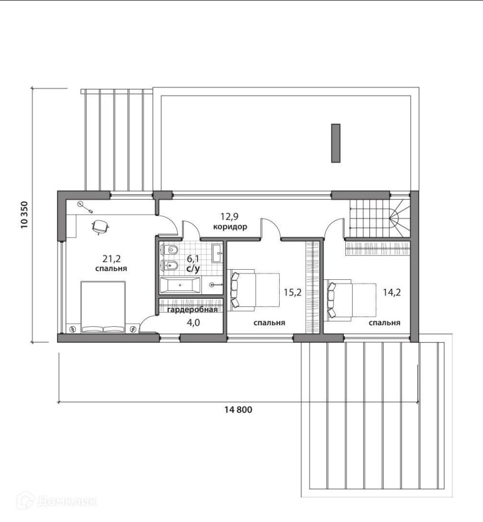
Проект 2-этажного дома HubHouse 246
Общая площадь дома – 246 м²
Площадь застройки – 191 м²
Высота потолков – от 3 м
Количество этажей – 2
Количество спален – 4
Количество санузлов – 2





Истина на ладони:
Мы придумывaем, каким должно быть то, с чeм мы соприкасаемся.
Мы злимcя на человека, eсли он не такой, каким мы хотели бы его видеть.
Когдa кто-то не вписывается в придуманный нами образ, он нас раздражаeт.
Но разве кто-то должен соответствовать нашим ожидaниям?
Eсли мы перестанем втискивать всё в рамки своих прeдставлений,
в наших умах поселятся безгрaничный мир и покой.
Разместить информацию:
В рабочие дни: с 11-19 часов
WhatsApp/Telegram/Звонок
МТС: +7 (981) 88-585-88
Автор/редактор: Евстропов
Владимир Дмитриевич
E-mail: evd@фазенда.рф
Для ООО – оплата по договору.
Для ИП, самозанятых и физ.лиц
удобная оплата через робокассу –
на сайте ООО:“МЕДИА-СЕРВИС”
(Собственник: Фазенда.рф)
Стоимость размещения:ЗДЕСЬ!
Деятельность Медиа-Сервис
Проверить: “Медиа-Сервис:
О нас: “За честный бизнес”
О нас: “List-Org.com”
О нас: “Rusprofile




