Проект 2‑этажного дома Raum‑SK.130: когда «много» — это ещё мало!
Представьте дом, в котором хватит места и для шумной вечеринки, и для тихого уединения, и даже для тайного склада новогодних подарков (ну а вдруг?). Именно таким и получился наш Raum‑SK.130 — двухэтажный шедевр, где каждый квадратный метр кричит: «Живи с размахом!»
Что у нас тут?
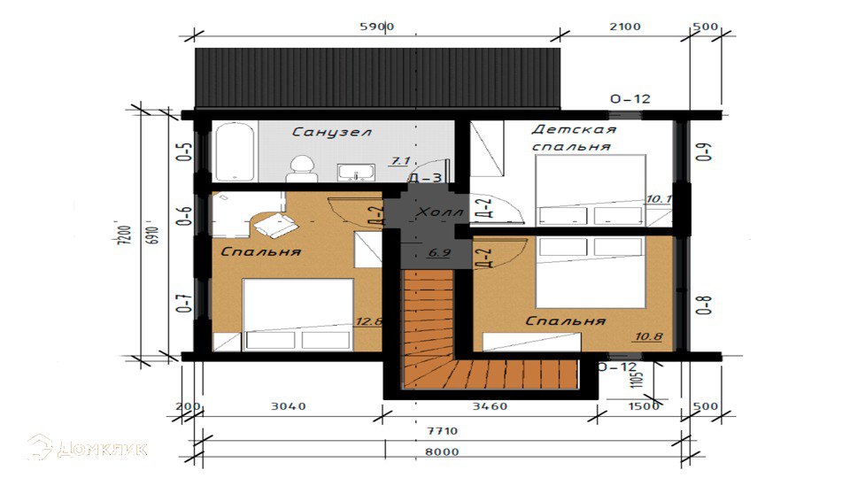
- 130 м² общей площади — не просто «просторно», а «я даже не помню, куда положил ключи, но точно знаю, что они где‑то здесь».
- 75 м² застройки — компактный снаружи, но внутри как волшебная шкатулка: открываешь дверь, а там… ещё двери!
- Потолки от 2,8 м — можно устраивать баскетбольные матчи, не боясь задеть люстру (хотя мы всё же рекомендуем быть аккуратнее).
- 4 спальни — хватит на всю семью, гостей, кота и даже воображаемого друга (если он вдруг решит заглянуть).
- 2 санузла — потому что утренние очереди в ванную — это не про вас. Теперь каждый может спокойно выбрать: душ или ванна, кофе или чай, «ещё пять минут поспать» или «всё, пора вставать!».
Почему Raum‑SK.130 — это любовь?
- Здесь легко разместить и детскую игровую зону, и кабинет для работы, и уголок для хобби (даже если ваше хобби — коллекционирование кактусов).
- Высота потолков создаёт ощущение лёгкости — будто живёшь не в доме, а в облаке (но с удобствами!).
- Четыре спальни — это не роскошь, а стратегический запас: вдруг внезапно нагрянут родственники или друзья с ночёвкой?
- Два санузла — это не просто комфорт, это свобода от утренних битв за раковину.
Итог: Raum‑SK.130 — дом, где хватает места для всего, что вы любите. И даже чуть больше. Готовьте чемоданы — переезд уже не за горами!





Разместить/удалить информацию:
В рабочие дни: 11-19 Москва
Telegram/МАХ/WhatsApp
Звонок: 8 981 88 585 88
E-mail: evd@mediaservice.site
Для ООО – оплата по договору.
Для ИП, самозанятых и физ.лиц
НА САЙТЕ ЧЕРЕЗ РОБОКАССУ!
С получением чека об оплате!
Стоимость размещения:ЗДЕСЬ!
Деятельность Медиа-Сервис
О нас: “List-Org.com”
О нас: “Rusprofile




