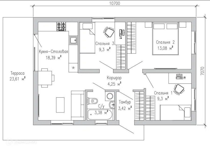
Проект «Морейн‑60»: дом, где мечты встречаются с комфортом (и парой лишних санузлов)!
Представьте себе идеальный одноэтажный дом — такой, где всё под рукой, ничего не надо искать на втором этаже, а утром не приходится устраивать забег по лестницам в пижаме. Это «Морейн‑60» — ваш личный кусочек счастья площадью 60 м2!
Что тут есть?
- Три спальни — хватит и для вас, и для гостей, и даже для того кота, который мечтает о собственной комнате (да‑да, мы знаем, что он считает себя королём).
- Два санузла — потому что утренние очереди в ванную это не про вас! Один — для тех, кто любит долго нежиться под душем, второй — для тех, кто «только зубы почистить и бегом».
- Потолки от 2,8 м — можно прыгать от радости, размахивать руками или просто чувствовать, что воздух тут посвободнее.
- Площадь застройки 80 м2 — места хватит и для дома, и для мангала, и для детской площадки, и даже для грядки с огурцами (если вдруг захочется).
Почему «Морейн‑60» — это любовь?
- Один этаж — никаких лестниц, никаких «ой, я забыл наверху». Всё в шаговой доступности, даже если вы в тапочках и с чашкой кофе.
- Компактно, но не тесно — 60 м2 так грамотно спланированы, что кажется, будто тут больше места, чем в вашей старой двухкомнатной квартире.
- Идеально для семьи — три спальни, два санузла, простор и уют. Можно даже устроить вечер настольных игр без риска задеть локтем соседа.
Короче, «Морейн‑60» — это дом, где:
- утро начинается не с подъёма по лестнице, а с улыбки;
- гости не теряются в поисках туалета;
- потолки такие высокие, что можно запускать воздушного змея (ну, почти).
Выбирайте «Морейн‑60» — и пусть ваш дом будет местом, где всегда весело, удобно и чуточку волшебно!




Разместить/удалить информацию:
В рабочие дни: 11-19 Москва
Telegram/МАХ/WhatsApp
Звонок: 8 981 88 585 88
E-mail: evd@mediaservice.site
Для ООО – оплата по договору.
Для ИП, самозанятых и физ.лиц
НА САЙТЕ ЧЕРЕЗ РОБОКАССУ!
С получением чека об оплате!
Стоимость размещения:ЗДЕСЬ!
Деятельность Медиа-Сервис
О нас: “List-Org.com”
О нас: “Rusprofile




