Проект «Дом в Лесном»: где уют обнимает природу (а природа — вас)
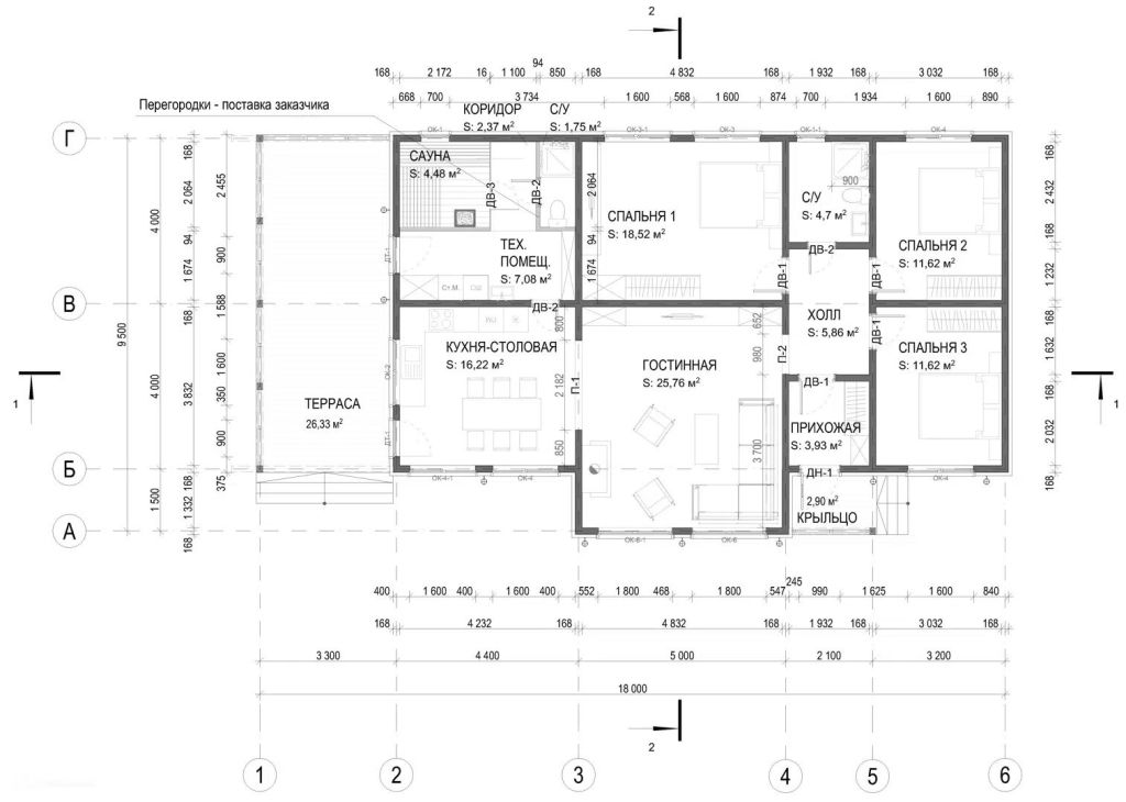
Представьте себе дом, который словно говорит: «Заходи, тут тепло, уютно и никаких лишних этажей — всё по‑честному!» Это наш одноэтажный красавец в Лесном — 139,7 м² чистого удовольствия без лестниц, на которые вечно забываешь тапочки.
Что у нас тут есть?
- Три спальни — чтобы у каждого было своё «место силы»: у вас — для сладких снов, у детей — для бесконечных игр, у кота — для важных размышлений о смысле жизни.
- Два санузла — потому что утренние очереди в душ это не про нас. Один для тех, кто просыпается с рассветом, второй — для любителей поспать до обеда.
- Площадь застройки 154,6 м² — достаточно места, чтобы:
- устроить пикник прямо на крыльце;
- спрятать велосипед (и не вспоминать о нём до весны);
- посадить клумбу, которая будет цвести ярче, чем ваши планы на лето.
Почему одноэтажный?
Потому что:
- не надо карабкаться наверх, когда несёшь три чашки чая и кота в охапке;
- дети не будут скатываться с лестницы на самокате (мы предупреждали!);
- гости никогда не заблудятся в поисках туалета.
Фишка проекта:
Этот дом — как добрый сосед, который всегда рад вас видеть. Он не давит высотой, не пугает запутанными коридорами и точно знает: счастье — это когда можно выйти на террасу, вдохнуть лесной воздух и сказать: «Ну вот, опять забыл, зачем выходил из дома… Ах да, за кофе!»
В общем, если вы мечтаете о месте, где:
- утро начинается с пения птиц, а не с подъёма на второй этаж;
- все комнаты — на расстоянии вытянутой руки;
- природа заглядывает в окна, а не прячется за горизонтом,
…то «Дом в Лесном» ждёт вас!



Разместить/удалить информацию:
В рабочие дни: 11-19 Москва
Telegram/МАХ/WhatsApp
Звонок: 8 981 88 585 88
E-mail: evd@mediaservice.site
Для ООО – оплата по договору.
Для ИП, самозанятых и физ.лиц
НА САЙТЕ ЧЕРЕЗ РОБОКАССУ!
С получением чека об оплате!
Стоимость размещения:ЗДЕСЬ!
Деятельность Медиа-Сервис
О нас: “List-Org.com”
О нас: “Rusprofile




