Проект двухэтажного дома «Оникс»: когда комфорт встречается с шиком!
Представьте дом, который словно говорит окружающим: «Да, я знаю, что выгляжу потрясающе — и это не случайно!» Именно таким получился проект дома «Оникс». Давайте знакомиться поближе!
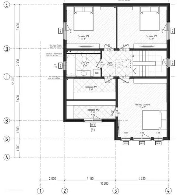
Что у нас тут?
- Простор? О да! Целых 180,2 м2 — хватит и для семейных посиделок, и для тайных чаепитий в уголке.
- Площадь застройки — 131,25 м2. Дом уверенно занимает своё место на участке, но не забывает о соседях — вежливость превыше всего!
- Потолки от 2,7 м — можно устраивать баскетбольные матчи или просто наслаждаться ощущением свободы.
- Два этажа — идеальный баланс между «не надо карабкаться слишком высоко» и «есть где разгуляться».
- Четыре спальни — у каждого члена семьи свой уголок, а если приедут гости, найдётся место и для них.
- Два санузла — больше никаких утренних очередей!
А теперь — к визуальной феерии!
- Фундамент выполнен «под чёрный обработанный гранит» — солидно, как у древних замков, но без лишних драконов.
- Первый этаж облачён в бардовый кирпич — стильно, благородно, с лёгким налётом аристократизма.
- Второй этаж украшен доской песчаного цвета — словно тёплый летний бриз решил поселиться у вас дома.
- Терраса и высокие окна в белоснежном исполнении — свежий акцент, который добавляет дому лёгкости и воздушности.
В общем, «Оникс» — это дом, в котором хочется жить, смеяться, принимать гостей и просто наслаждаться каждым днём. Он и красив, и удобен — настоящая мечта, воплощённая в реальность!





Разместить/удалить информацию:
В рабочие дни: 11-19 Москва
Telegram/МАХ/WhatsApp
Звонок: 8 981 88 585 88
E-mail: evd@mediaservice.site
Для ООО – оплата по договору.
Для ИП, самозанятых и физ.лиц
НА САЙТЕ ЧЕРЕЗ РОБОКАССУ!
С получением чека об оплате!
Стоимость размещения:ЗДЕСЬ!
Деятельность Медиа-Сервис
О нас: “List-Org.com”
О нас: “Rusprofile




