Проект «Модуль‑Г»: маленький дом с большим характером!
Представьте себе дом, который словно говорит: «Я не гигант, но у меня всё по‑умному!» Это и есть наш «Модуль‑Г» — компактный, уютный и до смешного практичный.
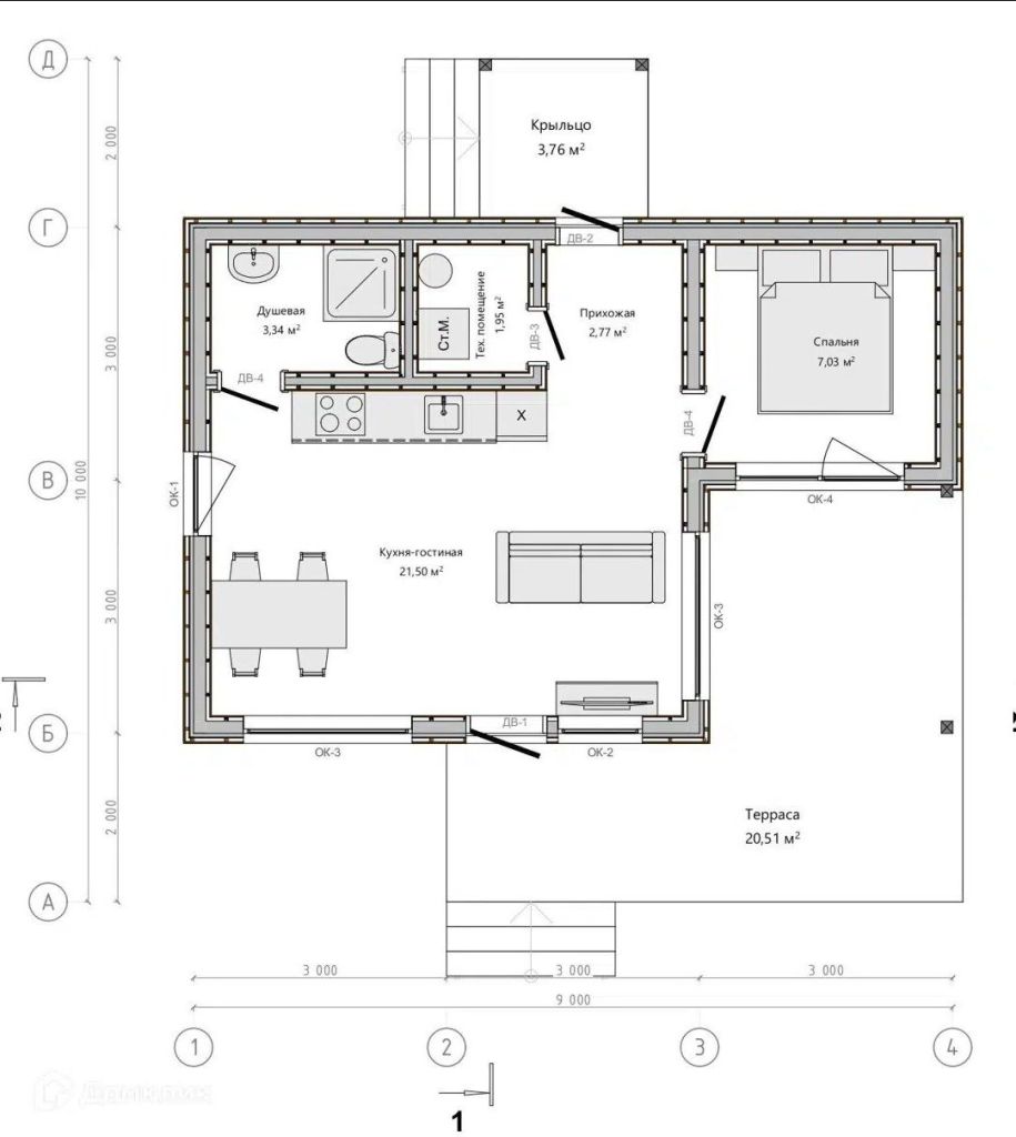
Что у нас тут?
- Общая площадь — 60,86 м². Не дворец, конечно, но и не скворечник! Ровно столько, чтобы разместить всё необходимое и при этом не заблудиться в коридорах.
- Площадь застройки — 61 м². Почти как площадь вашей мечты, только реальнее.
- Высота потолков — от 2,6 м. Достаточно, чтобы:
- танцевать под потолком (если вы вдруг решите устроить дискотеку);
- повесить гигантскую люстру (или хотя бы обычную, но с шиком);
- почувствовать себя немного великаном.
- 1 этаж. Никаких лестниц, никаких «ой, я забыл, что на втором…». Всё под рукой — как в хорошем магазине у дома.
- 1 спальня. Место, где сбываются сны (и где можно спрятаться от всех, если день был слишком насыщенным).
- 1 санузел. Потому что зачем больше, если всё работает как часы?
Почему «Модуль‑Г» — это любовь?
- Он не займёт пол-участка, зато оставит место для мангала, гамака или даже мини-огорода с укропом.
- В нём легко навести порядок (а если что — можно сказать: «Это не бардак, это творческий беспорядок!»).
- Он идеально подходит для тех, кто ценит уют без лишних квадратных метров.
Короче, «Модуль‑Г» — это дом, в котором комфортно жить, легко убираться и приятно возвращаться. Минимум пафоса, максимум удобства!



Разместить/удалить информацию:
В рабочие дни: 11-19 Москва
Telegram/МАХ/WhatsApp
Звонок: 8 981 88 585 88
E-mail: evd@mediaservice.site
Для ООО – оплата по договору.
Для ИП, самозанятых и физ.лиц
НА САЙТЕ ЧЕРЕЗ РОБОКАССУ!
С получением чека об оплате!
Стоимость размещения:ЗДЕСЬ!
Деятельность Медиа-Сервис
О нас: “List-Org.com”
О нас: “Rusprofile




