Проект «Конаково»: дом, в котором хочется жить (и никуда не уезжать)!
Представьте себе идеальный одноэтажный дом — такой, где всё под рукой, никаких утомительных подъёмов по лестницам и максимум комфорта. Именно таким получился проект «Конаково»!
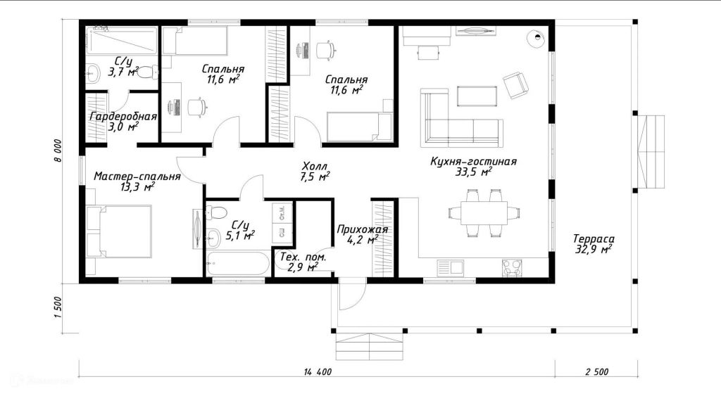
Что у нас тут? Целых 129,3 м² счастья под одной крышей — достаточно, чтобы разместить всю семью, гостей и даже тайную коллекцию кактусов (если вдруг она у вас есть). А площадь застройки в 149 м² намекает: двор будет просторным — хватит места и для мангала, и для детской площадки, и для философских прогулок в пижаме по утрам.
Высота потолков от 2,5 м — это вам не «приседай, чтобы не удариться». Здесь можно:
- устраивать домашние дискотеки с размахиванием руками;
- строить башни из подушек до небес;
- мечтать о полёте, не боясь задеть головой люстру.
А теперь — барабанная дробь! В доме:
- 3 спальни — чтобы у каждого было своё укромное местечко (даже у кота, если он претендует на отдельную комнату);
- 2 санузла — никакой утренней очереди в душ, мир в семье гарантирован!
Итог: «Конаково» — это дом, где:
- не надо носиться по этажам, как белка в колесе;
- хватает места для всех хобби, гостей и семейных посиделок;
- каждый уголок кричит: «Расслабься, ты дома!»
Короче, если ищете место, где можно выдохнуть и сказать: «Вот оно, счастье», — проект «Конаково» ждёт вас!



Разместить/удалить информацию:
В рабочие дни: 11-19 Москва
Telegram/МАХ/WhatsApp
Звонок: 8 981 88 585 88
E-mail: evd@mediaservice.site
Для ООО – оплата по договору.
Для ИП, самозанятых и физ.лиц
НА САЙТЕ ЧЕРЕЗ РОБОКАССУ!
С получением чека об оплате!
Стоимость размещения:ЗДЕСЬ!
Деятельность Медиа-Сервис
О нас: “List-Org.com”
О нас: “Rusprofile




