Представьте дом, который словно говорит вам: «Заходи, располагайся, тут тебе точно понравится!» Это и есть «Классик 105» — одноэтажный шедевр, где всё продумано до мелочей, а уют буквально разливается по комнатам.
Что у нас тут?
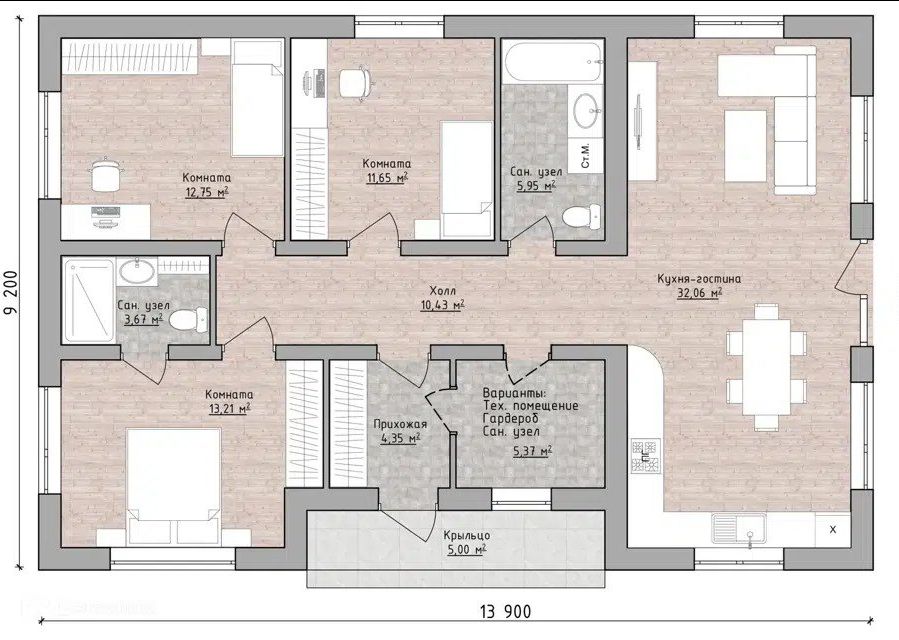
- 105 м² чистой радости. Это не просто квадратные метры — это пространство для жизни, смеха, семейных посиделок и тайных чаепитий в уголке.
- 137 м² застройки. Дом не просто стоит на участке — он царственно располагается, давая понять: тут есть место и для вас, и для ваших мечтаний (и даже для сарая с инструментами — если очень надо).
- Потолки от 3 м. Хотите почувствовать себя королём (или королевой) собственного замка? Высокие потолки создают ощущение простора и позволяют дышать полной грудью. А ещё тут удобно развешивать гирлянды к праздникам!
- 1 этаж — и никаких лестниц! Забудьте о подъёмах и спусках: всё под рукой, всё в одном уровне. Идеально для тех, кто ценит удобство (и не хочет считать ступеньки по утрам).
- 3 спальни — место для сна, грёз и тайных убежищ. Одна — для вас, вторая — для второй половинки, третья — для гостей (или для коллекции плюшевых медведей — решать вам!).
- 2 санузла — потому что один — это уже риск. Никто не будет стоять в очереди по утрам, а значит, день начнётся без стресса.
«Классик 105» — это:
- дом, где хватает места для всех (и даже для кота, который считает себя главным);
- пространство, где каждый уголок продуман так, чтобы вам было комфортно;
- идеальный вариант для тех, кто хочет жить с размахом, но без лишних сложностей.
Короче, если вы ищете дом, в котором можно и отдохнуть, и повеселиться, и просто наслаждаться жизнью — «Классик 105» ждёт вас!





Разместить/удалить информацию:
В рабочие дни: 11-19 Москва
Telegram/МАХ/WhatsApp
Звонок: 8 981 88 585 88
E-mail: evd@mediaservice.site
Для ООО – оплата по договору.
Для ИП, самозанятых и физ.лиц
НА САЙТЕ ЧЕРЕЗ РОБОКАССУ!
С получением чека об оплате!
Стоимость размещения:ЗДЕСЬ!
Деятельность Медиа-Сервис
О нас: “List-Org.com”
О нас: “Rusprofile




