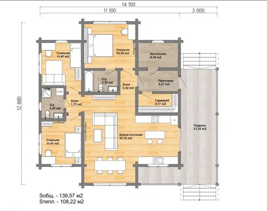
Проект 1‑этажного дома «КАРАТ»: просторно, удобно и без лишних лестниц!
Представьте дом, в котором всё под рукой — и никуда не надо карабкаться по лестницам, рискуя в темноте наткнуться на невидимого врага (то есть на угол шкафа). Именно таким и задуман наш «КАРАТ» — одноэтажный бриллиант среди загородных проектов!
Что у нас тут есть?
- 140 м² чистой радости. Целых 140 квадратных метров, где можно:
- устраивать танцевальные баттлы в гостиной;
- играть в прятки (даже если вас много);
- разгуливать с подносом вкусняшек, не боясь споткнуться на ступеньках.
- 3 спальни — для сна, снов и ещё раз сна. Одна — ваша, вторая — для гостей, третья — для тех, кто «я только на пару ночей»… а потом остаётся на месяц. Места хватит всем!
- 2 санузла — чтобы никто не стоял в очереди. Один — для утренней суеты, второй — для вечерних ритуалов. Конфликты из‑за зубной пасты? Не, не слышали!
- Потолки от 2,8 м — чтобы чувствовать себя королём (или королевой) просторов. Можно:
- повесить гигантскую люстру (если душа просит пафоса);
- устроить домашний баскетбол (ну, почти);
- просто наслаждаться тем, что над головой — не давящая теснота, а воздушное великолепие.
Почему «КАРАТ»?
Потому что этот дом — как драгоценный камень:
- Яркий — соседи будут завистливо ахать.
- Ценный — потому что комфорт не купишь за деньги (ну, почти).
- Безупречный — ни одного лишнего этажа, только гармония и удобство.
Короче, если вы мечтаете о доме, где всё логично, просторно и без акробатики на лестницах — «КАРАТ» ждёт вас!



Разместить/удалить информацию:
В рабочие дни: 11-19 Москва
Telegram/МАХ/WhatsApp
Звонок: 8 981 88 585 88
E-mail: evd@mediaservice.site
Для ООО – оплата по договору.
Для ИП, самозанятых и физ.лиц
НА САЙТЕ ЧЕРЕЗ РОБОКАССУ!
С получением чека об оплате!
Стоимость размещения:ЗДЕСЬ!
Деятельность Медиа-Сервис
О нас: “List-Org.com”
О нас: “Rusprofile




