Проект «Готика»: когда средневековье встречается с комфортом XXI века!
Представьте: вы — благородный рыцарь (или прекрасная дама) наших дней, которому надоело ютиться в стандартных коробках‑квартирах. Хочется чего‑то… эпичного! Но без необходимости топить камин дровами и отбиваться от драконов. Тогда проект «Готика» — ваш идеальный замок… в одноэтажном исполнении!
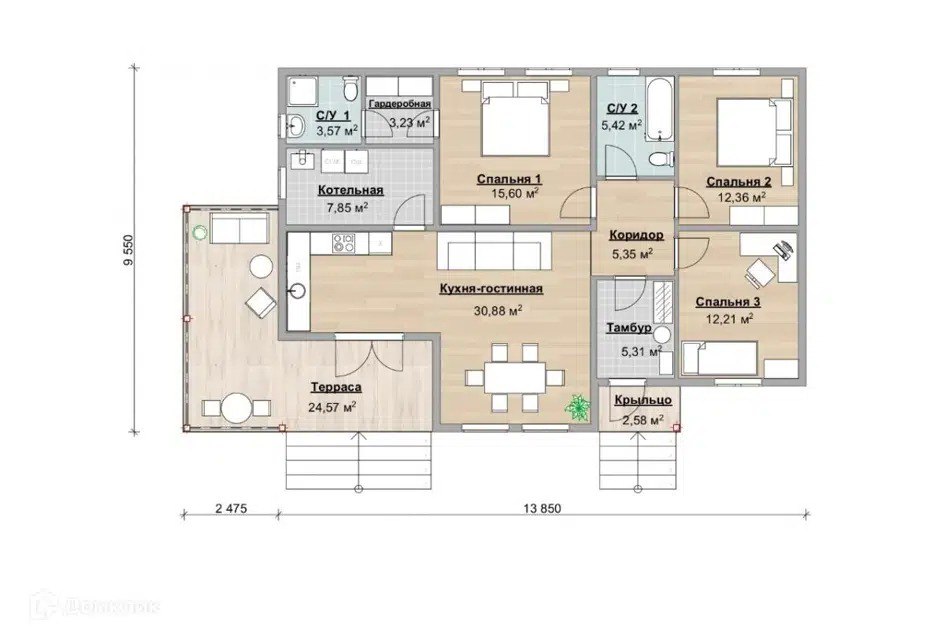
Что у нас тут?
- Площадь: 128,74 м2 — достаточно, чтобы устроить рыцарский турнир (ну, или просто разложить вещи после шопинга).
- Застройка: 155,9 м2 — чтобы соседи восхищённо вздыхали: «Вот это размахались!»
- Потолки от 2,7 м — можно махать мечом (или шваброй) без риска задеть люстру.
- 1 этаж — никаких мучительных подъёмов по винтовым лестницам! Всё под рукой, как в хорошем фастфуде.
- 3 спальни — для вас, второй половинки и… ну, вдруг принц/принцесса на белом коне заглянет в гости?
- 2 санузла — потому что в средневековье очереди в туалет были не в почёте.
Почему «Готика» — это круто?
- Стиль. Ваши гости будут ахать: «Ого, это что, мини‑замок?!» А вы скромно отвечать: «Ну, так, по мелочи…»
- Практичность. Никаких лестниц — ни утром, когда вы еле волочите ноги к кофемашине, ни ночью, когда идёте проверять, не шуршат ли мыши.
- Пространство. Три спальни — это три повода сказать: «У нас есть комната для ваших вещей!» (и не врать).
- Два санузла. Потому что один — это уже риск, а два — это роскошь и гарантия, что утренние сборы не превратятся в битву за раковину.
Итог: «Готика» — это дом, где средневековый шарм сочетается с современным удобством. Здесь можно:
- представлять себя феодалом, наливая кофе в кружке с драконами;
- устраивать «балы» для друзей без риска заблудиться в коридорах;
- спать в одной из трёх спален и выбирать, в какой сегодня «тронной зале» отдыхать.
Так что если вы готовы к жизни с налётом благородства (но без налёта пыли из старых замков) — проект «Готика» ждёт вас!


Разместить/удалить информацию:
В рабочие дни: 11-19 Москва
Telegram/МАХ/WhatsApp
Звонок: 8 981 88 585 88
E-mail: evd@mediaservice.site
Для ООО – оплата по договору.
Для ИП, самозанятых и физ.лиц
НА САЙТЕ ЧЕРЕЗ РОБОКАССУ!
С получением чека об оплате!
Стоимость размещения:ЗДЕСЬ!
Деятельность Медиа-Сервис
О нас: “List-Org.com”
О нас: “Rusprofile




