Проект «Фрегат»: дом, который покорит даже пиратов!
Представьте себе корабль. Не обычный, а такой, что вызывает зависть у самого капитана Джека Воробья. Только этот корабль никуда не плывёт — он прочно обосновался на вашем участке и готов стать вашим уютным убежищем. Встречайте — проект двухэтажного дома «Фрегат»!
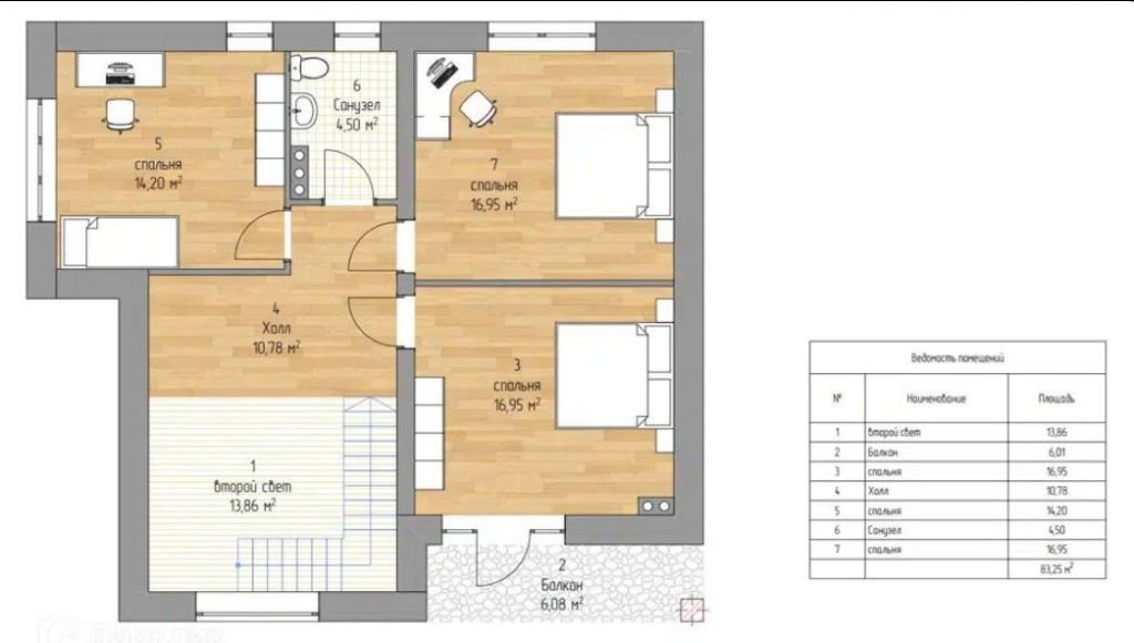
Что у нас тут?
- Площадь: 186,36 м2 — хватит места и для пиратской вечеринки, и для тихого семейного вечера.
- Застройка: 127,05 м2 — компактный, но вместительный, как сундук с сокровищами.
- Потолки: от 3 м — можно запускать воздушного змея прямо в гостиной!
- Этажей: 2 — верхний этаж для наблюдения за горизонтом (или за соседями, если честно).
- Спален: 4 — хватит для всей команды, включая кота‑капитана.
- Санузлов: 2 — чтобы не устраивать очереди по утрам.
Внешний вид: стиль «Чёрный лебедь»
«Фрегат» не прячется — он заявляет о себе! Багровый кирпич снаружи создаёт ощущение тепла и надёжности, а чёрные панорамные окна, стеклопакеты, терраса, балкон и даже фундамент с крышей добавляют нотку загадочности. Выглядит так, будто дом только что сошёл с обложки модного архитектурного журнала (или из фильма про супергероев).
Почему «Фрегат»?
Потому что это не просто дом — это ваш личный корабль для путешествий в мир комфорта и уюта. Здесь можно:
- устраивать вечеринки под звёздами на чёрной террасе;
- мечтать у панорамных окон, представляя себя капитаном дальнего плавания;
- прятаться от суеты в одной из четырёх спален (или использовать их как каюты для гостей).
Так что, готовы поднять паруса и отправиться в плавание по волнам домашнего счастья? «Фрегат» ждёт вас!





Разместить/удалить информацию:
В рабочие дни: 11-19 Москва
Telegram/МАХ/WhatsApp
Звонок: 8 981 88 585 88
E-mail: evd@mediaservice.site
Для ООО – оплата по договору.
Для ИП, самозанятых и физ.лиц
НА САЙТЕ ЧЕРЕЗ РОБОКАССУ!
С получением чека об оплате!
Стоимость размещения:ЗДЕСЬ!
Деятельность Медиа-Сервис
О нас: “List-Org.com”
О нас: “Rusprofile




