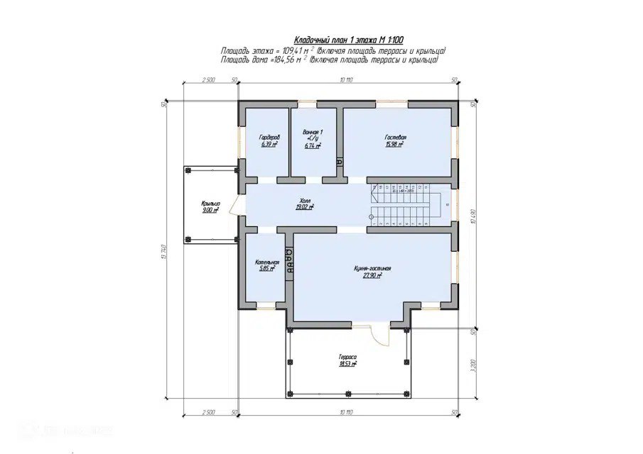
Проект «Агро 1»: двухэтажный дом, где мечты о загородной жизни становятся реальностью (и даже чуточку лучше)!
Представьте: вы просыпаетесь в собственном доме, где хватает места и для шумных семейных посиделок, и для тихого уединения. Это не сказка — это «Агро 1»!
Что тут есть? О‑о‑о, сейчас перечислим с восторгом:
- Целых 215,76 м² счастья! Это не просто квадратные метры — это пространство для ваших хобби, вечеринок, хранения зимних заготовок и даже тайного склада любимых книг.
- 149 м² застройки — дом уверенно занимает своё место на участке, словно говорит: «Да, я здесь главный, и это прекрасно!»
- Потолки от 2,75 м — можно прыгать до потолка (ну, почти), устраивать домашние парады с воздушными шарами или просто наслаждаться ощущением простора.
- 2 этажа — верх для сна и отдыха, низ для жизни и веселья. Идеальный баланс!
- 3 спальни — место для вас, второй половинки и… ну, допустим, для гостевой комнаты (хотя, честно говоря, тут можно устроить и кабинет, и спортзал, и даже мини‑библиотеку — выбирайте!).
- 2 санузла — потому что утренние очереди в ванную это не про вас. Каждый может спокойно привести себя в порядок, не толпясь у раковины.
«Агро 1» — это дом, где:
- утро начинается с кофе на просторной кухне, а не с поисков свободных розеток;
- гости не чувствуют себя как в «тесном купе», а вы не переживаете, что им негде сесть;
- каждый найдёт уголок по душе — от солнечной спальни до уютного места у окна для вечернего чтения.
Короче, если вы мечтали о доме, где хватит места и для семьи, и для друзей, и для ваших грандиозных планов — «Агро 1» ждёт вас! Приезжайте, смотрите, влюбляйтесь — и переезжайте уже завтра!





Разместить/удалить информацию:
В рабочие дни: 11-19 Москва
Telegram/МАХ/WhatsApp
Звонок: 8 981 88 585 88
E-mail: evd@mediaservice.site
Для ООО – оплата по договору.
Для ИП, самозанятых и физ.лиц
НА САЙТЕ ЧЕРЕЗ РОБОКАССУ!
С получением чека об оплате!
Стоимость размещения:ЗДЕСЬ!
Деятельность Медиа-Сервис
О нас: “List-Org.com”
О нас: “Rusprofile




