Проект D188‑1: дом, где мечты становятся квадратными метрами (и это здорово!)
Представьте себе дом, который словно говорит вам: «Расслабься, тут хватит места для всего — и для сна, и для танцев, и даже для тайного склада шоколадок!» Это и есть наш D188‑1 — одноэтажный шедевр, где 167 м² общей площади готовы стать вашей личной вселенной.
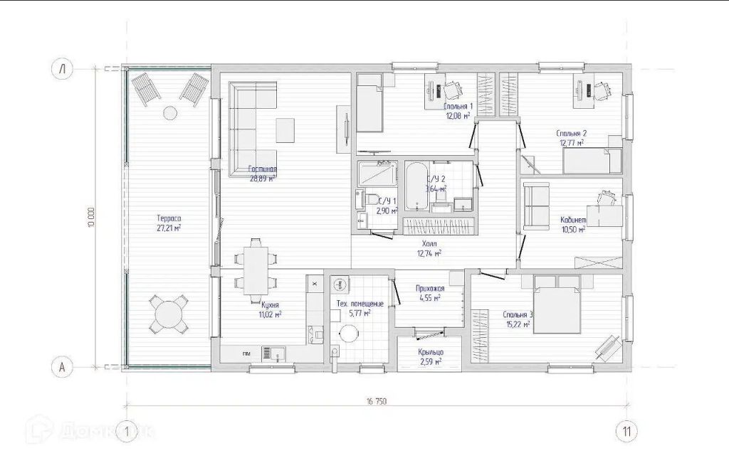
Что тут есть? О, много всего!
- 4 спальни — потому что «личное пространство» не должно быть пустым звуком. Одна — для вас, вторая — для второй половинки, третья — для гостей (которые, конечно, останутся навсегда), а четвёртая… ну, пусть будет комната для размышлений о великом (или для хранения коллекционных носков).
- 2 санузла — чтобы никто не стоял в очереди с зубной щёткой в 8 утра. Конфликты из‑за «кто первый в душ» официально отменены!
- Потолки от 2,7 м — можно подпрыгивать, размахивать руками или строить башни из подушек. Воздух тут не в дефиците!
- Площадь застройки 170 м² — чуть больше, чем сам дом. Это как бонус: можно устроить газон, клумбу или мини‑стадион для домашних соревнований по догонялкам.
Почему один этаж — это кайф?
- Не надо карабкаться по лестницам, когда несёшь 10 пакетов из магазина.
- Дети (и коты) не будут скатываться вниз со скоростью метеора.
- Гости никогда не заблудятся в поисках туалета. Всё на виду, всё под рукой!
Итог: D188‑1 — это дом, где:
- утро начинается не с поиска носков, а с улыбки;
- вечера проходят в уютной гостиной, а не в спорах, кто пойдёт выключать свет на втором этаже;
- каждый уголок кричит: «Тут можно жить с комфортом и без лишних сложностей!»
Выбирайте D188‑1 — и пусть ваш дом будет местом, где смех, уют и квадратные метры живут в гармонии!



Разместить/удалить информацию:
В рабочие дни: 11-19 Москва
Telegram/МАХ/WhatsApp
Звонок: 8 981 88 585 88
E-mail: evd@mediaservice.site
Для ООО – оплата по договору.
Для ИП, самозанятых и физ.лиц
НА САЙТЕ ЧЕРЕЗ РОБОКАССУ!
С получением чека об оплате!
Стоимость размещения:ЗДЕСЬ!
Деятельность Медиа-Сервис
О нас: “List-Org.com”
О нас: “Rusprofile




