Проект дома D165‑2: где мечты о просторе становятся реальностью (и немного хаоса)
Представьте дом, в котором хватит места и для тихого вечера с книгой, и для внезапного нашествия родственников на выходные. Именно таким — вместительным, уютным и слегка амбициозным — получился проект D165‑2!
Что у нас тут?
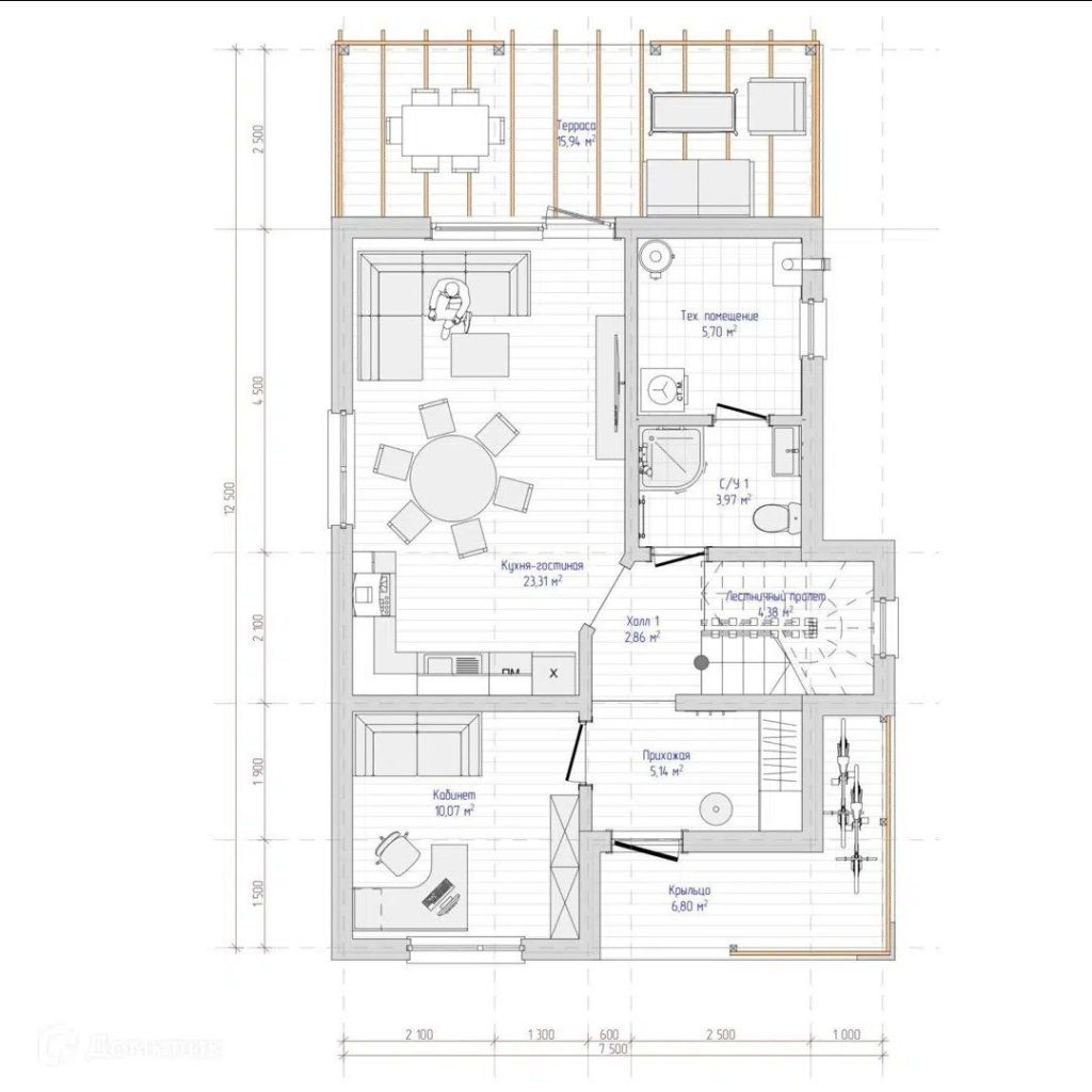
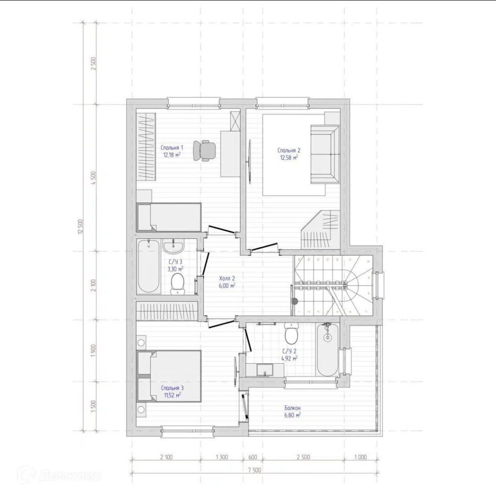
- 157 м² общей площади — не просто цифры, а гарантия того, что вы наконец‑то найдёте тот самый носок, который вечно теряется в недрах квартиры.
- 104 м² застройки — достаточно, чтобы разместить всё, что вы когда‑либо хотели (и даже то, о чём пока не догадываетесь).
- Потолки от 2,7 м — можно:
- устраивать домашние баскетбольные матчи;
- вешать гигантские люстры;
- чувствовать себя немного выше, чем обычно.
- 2 этажа — классика жанра! Верхний этаж для сна, нижний для жизни (или наоборот — решайте сами).
- 4 спальни — хватит на:
- семью мечты;
- гостей, которые «забежали на часок» и остались на неделю;
- личную библиотеку/спортзал/комнату для медитации (нужное подчеркнуть).
- 3 санузла — потому что утренние очереди в ванную — это не про вас. Теперь каждый может спокойно привести себя в порядок, не устраивая «кто первый».
Почему D165‑2 — это любовь?
- Здесь хватит места для всего: от семейных посиделок до внезапных вечеринок.
- Пространство продумано: никаких тёмных углов, только свет, воздух и ощущение свободы.
- Стиль без излишеств: дом, который выглядит солидно, но не заставляет вас чувствовать, будто вы живёте в музее.
В общем, D165‑2 — это не просто дом. Это сцена для вашей жизни, где каждый день может стать маленьким приключением. Осталось только заселиться и начать писать свою историю!





Разместить/удалить информацию:
В рабочие дни: 11-19 Москва
Telegram/МАХ/WhatsApp
Звонок: 8 981 88 585 88
E-mail: evd@mediaservice.site
Для ООО – оплата по договору.
Для ИП, самозанятых и физ.лиц
НА САЙТЕ ЧЕРЕЗ РОБОКАССУ!
С получением чека об оплате!
Стоимость размещения:ЗДЕСЬ!
Деятельность Медиа-Сервис
О нас: “List-Org.com”
О нас: “Rusprofile




