Проект «Бишоп»: двухэтажный дом, где мечты встречаются с комфортом!
Представьте дом, в котором хватит места и для шумной вечеринки, и для тихого уединения. Знакомьтесь — проект «Бишоп»! Это не просто дом, а настоящая шахматная королева среди загородных построек: стильно, функционально и с намёком на аристократизм (без занудства, конечно!).
Что тут у нас?
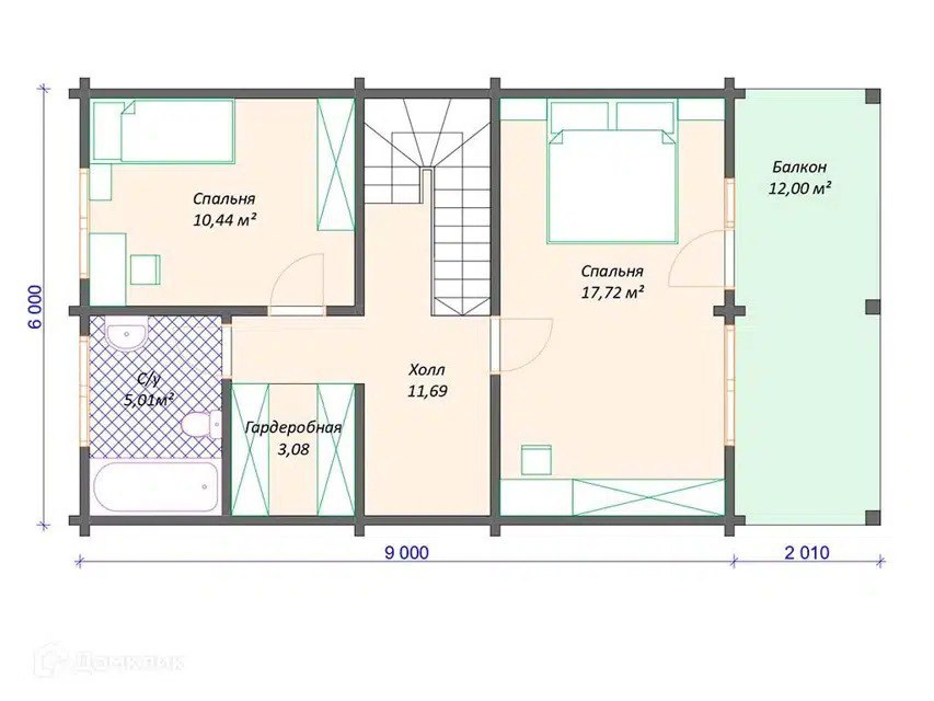
- 108 м² общей площади — хватит, чтобы устроить марафон по комнатам и не столкнуться с домочадцами (если очень постараться).
- 82 м² застройки — компактный, но не тесный. Как идеальный костюм: сидит впору!
- Потолки от 3 м — можно подкидывать ключи до потолка и ловить их, не боясь задеть люстру. Или репетировать прыжки в высоту — на случай Олимпиады.
- 2 этажа — классика жанра. Первый — для гостей и суеты, второй — для «я пошёл спать, меня нет!».
- 3 спальни — место для вас, второй половинки и… ну, вдруг друзья останутся на ночь (а они останутся!).
- 2 санузла — потому что утренние очереди в ванную — это не про «Бишоп». Здесь каждый может спокойно почистить зубы без криков «Ты там утонул?!».
Почему «Бишоп»?
Потому что этот дом — как слон в шахматах: двигается по диагонали комфорта, защищает вашу личную зону и всегда на шаг впереди скучных типовых решений. Тут и простор, и уют, и место для ваших «а давайте заведем кота/аквариум/мини‑сад на подоконнике».
В общем, если вы хотите дом, где будет и «вау!», и «наконец‑то удобно», — «Бишоп» ждёт вас. Осталось только выбрать цвет фасада и придумать, куда поставить трофей за лучший дом в округе!






Разместить/удалить информацию:
В рабочие дни: 11-19 Москва
Telegram/МАХ/WhatsApp
Звонок: 8 981 88 585 88
E-mail: evd@mediaservice.site
Для ООО – оплата по договору.
Для ИП, самозанятых и физ.лиц
НА САЙТЕ ЧЕРЕЗ РОБОКАССУ!
С получением чека об оплате!
Стоимость размещения:ЗДЕСЬ!
Деятельность Медиа-Сервис
О нас: “List-Org.com”
О нас: “Rusprofile




