Проект БД‑66: одноэтажный дом, где всё под рукой (и ничего не надо искать на втором этаже)!
Представьте дом, в котором вы никогда не устанете бегать по лестницам. Дом, где можно в пижаме и с чашкой чая объехать все комнаты на любимом самокате (ну, почти). Это — БД‑66, одноэтажный шедевр, который скажет «нет» высотным подвигам и «да» уютному проживанию!
Что у нас тут?
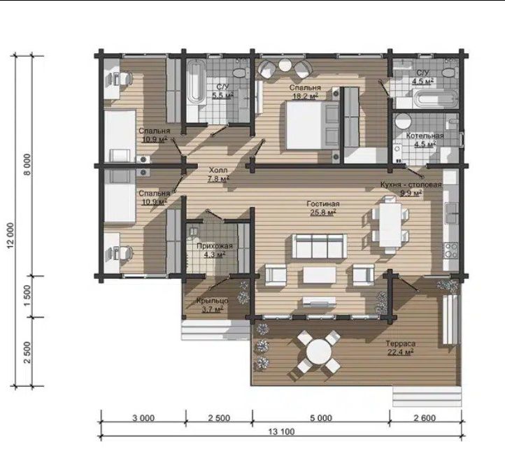
- 129 м² счастья — столько места, чтобы разместить и диван мечты, и уголок для хобби, и даже тайную полку с печеньем (мы никому не расскажем).
- 142 м² застройки — чуть больше, чем сам дом. Это как шляпа фокусника: снаружи кажется обычным, а внутри — магия пространства!
- Потолки от 2,8 м — можно устраивать домашние баскетбольные матчи или просто чувствовать себя королём простора.
- 1 этаж — никаких «ой, я забыл на втором»! Всё в шаговой доступности. Даже если вы только что проснулись.
- 3 спальни — место для вас, второй половинки и… ну, допустим, гостевой комнаты (хотя мы догадываемся, что там будет склад любимых книг).
- 2 санузла — потому что утренние очереди в ванную — это не про вас. Два фронта умываний, два царства чистоты!
Почему БД‑66 — это любовь?
- Не надо карабкаться наверх, чтобы проверить, выключен ли утюг.
- Дети (и коты) не будут скакать по лестницам, заставляя вас нервно вздрагивать.
- Гости никогда не заблудятся в поисках туалета (всё на виду!).
- Можно устроить марафон по дому в стиле «беги, если успеешь» — и никуда не подняться, но всё обойти!
Итог: БД‑66 — дом, где комфорт живёт на одном уровне с вами. Без лишних ступеней, но с кучей возможностей. Пора переезжать и наслаждаться жизнью без лестниц!


Разместить/удалить информацию:
В рабочие дни: 11-19 Москва
Telegram/МАХ/WhatsApp
Звонок: 8 981 88 585 88
E-mail: evd@mediaservice.site
Для ООО – оплата по договору.
Для ИП, самозанятых и физ.лиц
НА САЙТЕ ЧЕРЕЗ РОБОКАССУ!
С получением чека об оплате!
Стоимость размещения:ЗДЕСЬ!
Деятельность Медиа-Сервис
О нас: “List-Org.com”
О нас: “Rusprofile




