Проект «Авиагородок»: трёхэтажный дом‑мечта (и чуть‑чуть — дом‑облако)
Представьте себе дом, который будто только что приземлился прямиком из сказочного авиагорода. Не дом — а настоящий небесный лайнер на земле! Давайте знакомиться поближе.
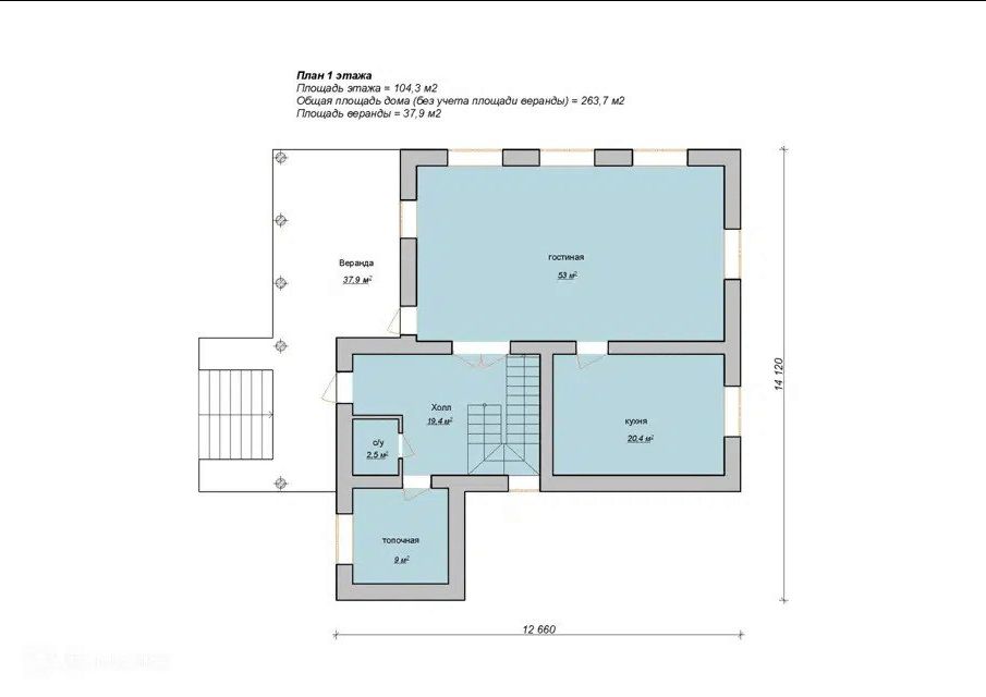
Что тут у нас?
- Три этажа — как три палубы воздушного судна. На первой — приём гостей и кулинарные подвиги, на второй — уютные спальни, на третьем… ну, там можно устроить обсерваторию или тайную мастерскую изобретателя летательных аппаратов.
- 302 м² общей площади — хватит, чтобы устроить марафон по комнатам или сыграть в прятки с целой футбольной командой.
- 234 м² застройки — дом солидный, но не настолько, чтобы соседи спрашивали: «А это точно не аэропорт?»
- Потолки от 2,75 м — можно подпрыгивать от радости, размахивать руками или даже репетировать взлёт (но лучше без фанатизма).
Спальни и санузлы: 3 × 3 = счастье
Три спальни — для вас, второй половинки и… ну, пусть будет комната для внезапных гостей (или для коллекции плюшевых самолётиков). И три санузла — потому что утренние очереди в душ это не про нас!
Дизайн: небо на земле
- Стены нежно‑голубые — будто кусочек неба решил поселиться у вас на фасаде.
- Крыша серо‑голубая, мягкая, как облака. Смотришь — и кажется, что дом сейчас плавно оторвётся от земли.
- Белые окна и балкон с террасой — контраст, от которого глаз радуется. Балкон идеально подходит для чаепитий с видом на «взлётную полосу» (то есть на ваш сад).
- Голубой фундамент и крыльцо — чтобы даже основание дома напоминало о небе.
Итог:
«Авиагородок» — это не просто дом. Это место, где каждый день начинается с ощущения лёгкости, а вечером можно выйти на террасу и представить, что вы капитан воздушного корабля. Ну что, готовы к взлёту? ✈️






Разместить/удалить информацию:
В рабочие дни: 11-19 Москва
Telegram/МАХ/WhatsApp
Звонок: 8 981 88 585 88
E-mail: evd@mediaservice.site
Для ООО – оплата по договору.
Для ИП, самозанятых и физ.лиц
НА САЙТЕ ЧЕРЕЗ РОБОКАССУ!
С получением чека об оплате!
Стоимость размещения:ЗДЕСЬ!
Деятельность Медиа-Сервис
О нас: “List-Org.com”
О нас: “Rusprofile




