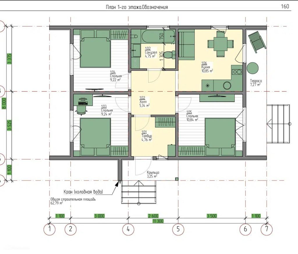
Проект 1-этажного дома Нео Барн
Общая площадь дома – 64,13 м²
Площадь застройки – 90,4 м²
Высота потолков – от 2,8 м
Количество этажей – 1
Количество спален – 2
Количество санузлов – 1




На дайджест/сайт: Фазенда.рф
можно разместить информацию:
В рабочие дни: с 11-19 часов
(время по Санкт-Петербургу)
WhatsApp/Telegram/Звонок
МТС: +7 (981) 885 85 88
Редактор: Евстропов
Владимир Дмитриевич
E-mail: evd@фазенда.рф
Для ООО – оплата по договору.
Для ИП, самозанятых и физ.лиц
НА САЙТЕ ЧЕРЕЗ РОБОКАССУ!
(вам придёт чек об оплате)
Стоимость размещения:ЗДЕСЬ!
Деятельность Медиа-Сервис
Проверить: “Медиа-Сервис:
О нас: “За честный бизнес”
О нас: “List-Org.com”
О нас: “Rusprofile




