Проект 1‑этажного дома «Сосновый бор»: идеальное решение для дачи и загородного дома

Мечтаете о просторном, уютном доме за городом — таком, чтобы хватило места и семье, и гостям, и при этом не пришлось тратить полдня на обход комнат? Проект «Сосновый бор» создан именно для вас! Разберём, почему он отлично подойдёт для дачи или загородного участка.
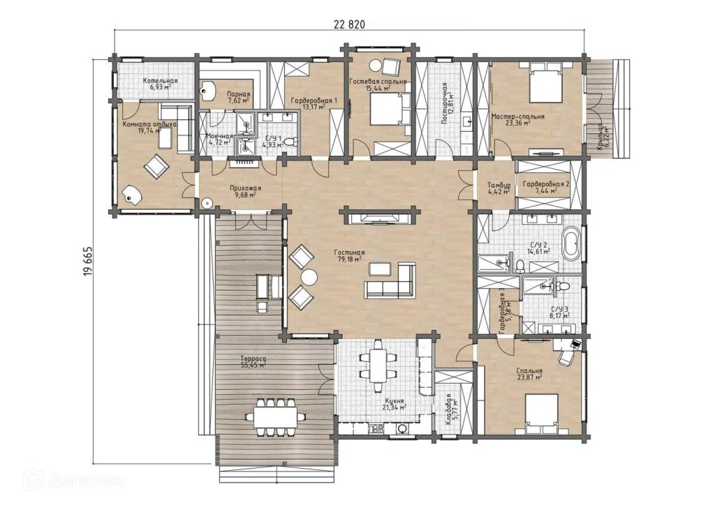
Ключевые параметры
Перед тем как погрузиться в детали, взгляните на основные характеристики:
- общая площадь: 389 м2;
- площадь застройки: 389 м2;
- количество этажей: 1;
- количество спален: 3;
- количество санузлов: 3.

Почему «Сосновый бор» — удачный выбор для загородного жилья?
- Один этаж — максимум комфорта
Отсутствие лестниц — большое преимущество для загородного дома. Это:
- безопасность для детей и пожилых членов семьи;
- удобство при переноске вещей, урожая с огорода, инвентаря;
- экономия времени — не нужно подниматься и спускаться.
- Простор без лишних метров
Площадь 389 м2 — золотая середина. Дом достаточно большой, чтобы разместить всё необходимое, но не настолько огромный, чтобы требовать постоянного ухода и огромных затрат на отопление. - Три спальни — место для всех
Три отдельные спальни позволяют комфортно разместить:
- хозяев;
- детей или внуков;
- гостей, которые решили остаться на выходные.
- Три санузла — никаких очередей
В доме с несколькими жильцами или гостями наличие трёх санузлов решает типичную проблему загородных домов — утренние очереди. Каждый может начать день без спешки. - Оптимальная площадь застройки
Поскольку общая площадь совпадает с площадью застройки (389 м2), дом компактно располагается на участке. Это даёт несколько плюсов:
- остаётся достаточно места для сада, огорода, зоны отдыха или детской площадки;
- проще ухаживать за территорией вокруг дома;
- снижаются затраты на фундамент и отмостку.
- Гибкость планировки для жизни за городом
Одноэтажная конфигурация позволяет легко адаптировать пространство под нужды загородного быта:
- можно выделить зону для хранения консервации, инструментов, садового инвентаря;
- легко организовать выход из кухни или гостиной прямо в сад или на террасу;
- удобно создавать «рабочие» уголки, например, для рукоделия или ремонта мелких вещей.
- Экономичность в эксплуатации
Одноэтажный дом проще и дешевле отапливать зимой (если вы планируете приезжать и в холодное время года) и охлаждать летом. Кроме того, обслуживание кровли и фасада занимает меньше времени и средств. - Эстетика и связь с природой
Название «Сосновый бор» неслучайно: такая архитектура органично вписывается в природный ландшафт. Большие окна (которые легко предусмотреть в одноэтажном проекте) позволят наслаждаться видом на сад или лес в любое время года.

Итог
Проект «Сосновый бор» — это продуманное сочетание комфорта, функциональности и практичности. Он подойдёт:
- семьям с детьми, ценящим безопасность и простор;
- тем, кто любит принимать гостей на выходных;
- дачникам, которым важно иметь достаточно места для хранения и отдыха;
- людям, ищущим экономичный в обслуживании загородный дом.

Вы получаете не просто стены и крышу, а пространство для жизни, отдыха и вдохновения — там, где начинается настоящая свобода.

Разместить/удалить пост
ООО/ИП оплата по договору
Самозанятые: РОБОКАССА
Редакция: 8 (812) 962 27 47
Рекламный: 8 981 88 585 88
Почта: evd@ms365.ru




