Проект «Княжна»: двухэтажный дом, в котором хочется жить (и никуда не уезжать)!
Представьте себе дом, который словно говорит: «Ну здравствуй, счастье!» — это наша «Княжна». Не просто дом, а настоящая дворянка среди загородных построек: статная, просторная и с лёгким налётом аристократической небрежности.
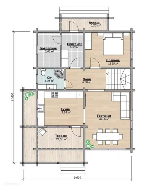
Что у нас тут?
- Площадь: 171,51 м2 — хватит места и для танцев, и для тайных совещаний, и даже для того, чтобы заблудиться (шутка… или нет?).
- Застройка: 115,5 м2 — компактный, но при этом невероятно вместительный. Как шкатулка с сокровищами: снаружи скромно, внутри — восторг!
- Потолки: от 2,8 м — можно устраивать баскетбольные матчи или просто наслаждаться ощущением простора. Воздух, свет и свобода — гарантированы!
- Этажей: 2 — чтобы утром подниматься по лестнице и чувствовать себя героем эпического фильма.
- Спален: 4 — хватит для всей семьи, друзей и даже дальних родственников, которые внезапно решили нагрянуть в гости.
- Санузлов: 2 — потому что очереди в ванную — это не про «Княжну». Комфорт превыше всего!
А теперь — изюминка!
Дом построен из клеёного бруса — экологично, надёжно и стильно. А кованые ограждения на балконе и террасе добавляют нотку изысканности: будто замок, но без драконов (хотя кто знает…).
Почему «Княжна»?
Потому что этот дом — как настоящая княжна:
- благородная внешность;
- просторный внутренний мир;
- умеет впечатлять с первого взгляда;
- и, конечно, готова стать вашим уютным убежищем от суеты.
Так что если вы мечтаете о доме, где будет комфортно всем — от малышей до бабушек, где хватит места для гостей и для ваших хобби, где можно наслаждаться природой и при этом не отказываться от современного комфорта — «Княжна» ждёт вас!




Разместить/удалить информацию:
В рабочие дни: 11-19 Москва
Telegram/МАХ/WhatsApp
Звонок: 8 981 88 585 88
E-mail: evd@mediaservice.site
Для ООО – оплата по договору.
Для ИП, самозанятых и физ.лиц
НА САЙТЕ ЧЕРЕЗ РОБОКАССУ!
С получением чека об оплате!
Стоимость размещения:ЗДЕСЬ!
Деятельность Медиа-Сервис
О нас: “List-Org.com”
О нас: “Rusprofile




