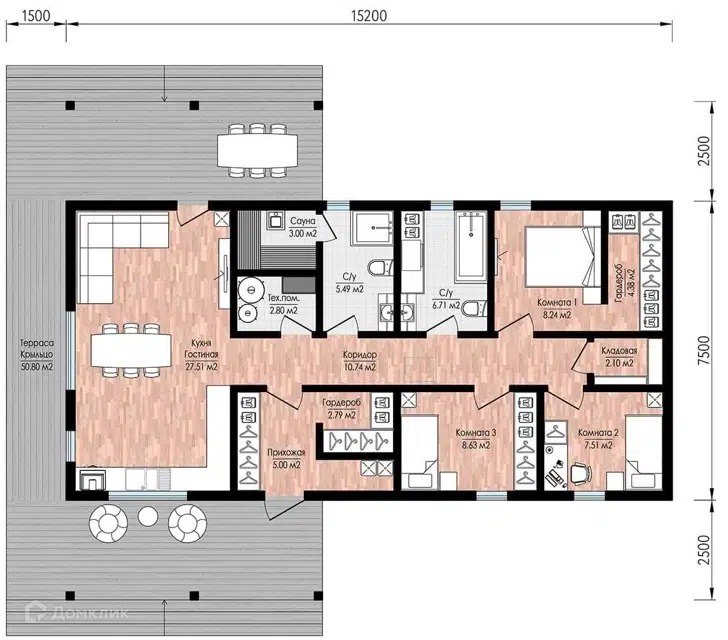
Проект 1-этажного дома С136
Общая площадь дома – 136 м²
Площадь застройки – 165 м²
Высота потолков – от 3 м
Количество этажей – 1
Количество спален – 3
Количество санузлов – 2




Разместить/удалить информацию:
В рабочие дни: 11-19 Москва
Telegram/МАХ/WhatsApp
Звонок: 8 981 88 585 88
E-mail: evd@mediaservice.site
Для ООО – оплата по договору.
Для ИП, самозанятых и физ.лиц
НА САЙТЕ ЧЕРЕЗ РОБОКАССУ!
С получением чека об оплате!
Стоимость размещения:ЗДЕСЬ!
Деятельность Медиа-Сервис
О нас: “List-Org.com”
О нас: “Rusprofile




