Представьте дом, в котором каждая комната словно говорит: «Заходи, тут тебе точно понравится!» Именно таким получился наш «Агафон» — двухэтажный шедевр, где пространство продумано до квадратного метра (и мы знаем, сколько их тут — аж 121 м2!).
Что у нас на первом этаже?
- Кухня (12,45 м2) — место, где рождаются кулинарные шедевры (и маленькие катастрофы, но кто об этом вспомнит, когда пахнет пирогами?).
- Гостиная (12,45 м2) — тут хватит места и для семейного киновечера, и для внезапного танцевального баттла.
- Спальня (7,53 м2) — уголок для тех, кто ценит утренний сон и вечерние мечты.
- Санузел (2,79 м2) — компактно, но со вкусом. Всё, что нужно, чтобы начать день с улыбки (и зубной щётки).
- Открытая терраса (9,64 м2) — идеальное место для чаепитий на свежем воздухе или для того, чтобы просто посидеть и полюбоваться закатом.
- Техническое помещение (3,65 м2) — тайная комната для всех тех вещей, которые «когда‑нибудь пригодятся».
- Холл (2,72 м2) — первое, что вы видите, входя в дом. Тут можно разуться, повесить куртку и сказать: «Я дома!»
- Тамбур (2,93 м2) — буферная зона между улицей и уютным миром «Агафона».
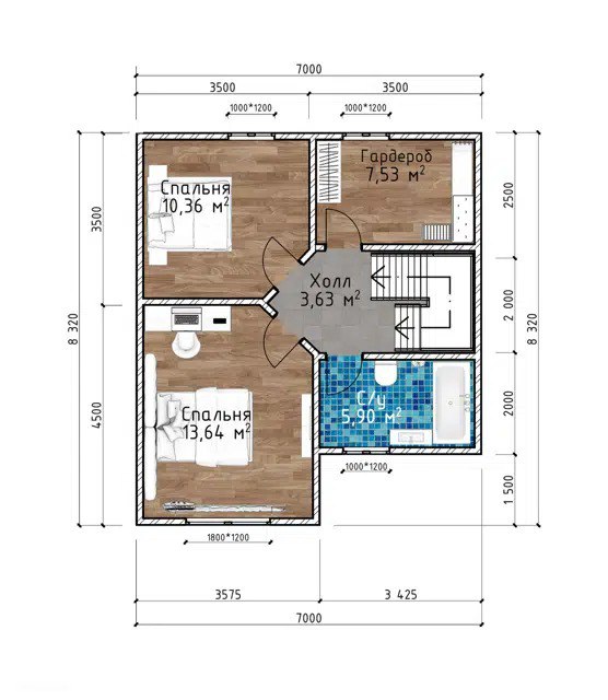
А что же на втором этаже?
- Первая спальня (10,36 м2) — для тех, кто любит спать под звёздами (ну, или под крышей, но это почти то же самое).
- Вторая спальня (13,65 м2) — простор для сладких снов и грандиозных планов на завтра.
- Санузел (5,90 м2) — чуть побольше, чтобы утренние ритуалы проходили с комфортом.
- Холл (3,63 м2) — перекрёсток второго этажа, откуда можно отправиться в любую из спален.
А теперь — немного про внешний вид!
- Фундамент — под шлифованный гранит. Потому что надёжность — наше второе имя.
- Стены — деревянный каркас небесного цвета. Словно дом решил поиграть в облачко, но остался на земле.
- Крыша — чёрная матовая металлочерепица. Стильно, строго и с намёком на загадочность.
Коротко о главном:
- Общая площадь: 121 м2.
- Площадь застройки: 73 м2.
- Высота потолков: от 2,6 м — чтобы даже самые высокие мечты не упирались в потолок.
- Этажей: 2 — потому что один этаж — это хорошо, а два — ещё лучше!
- Спален: 3 — хватит места для всей семьи и гостей (если они очень‑очень попросятся).
- Санузлов: 2 — чтобы никто не стоял в очереди по утрам.
«Агафон» — это не просто дом. Это место, где каждый квадратный метр наполнен теплом, уютом и капелькой юмора. Заходите, устраивайтесь поудобнее — и пусть начнётся ваша история!


Разместить/удалить информацию:
В рабочие дни: 11-19 Москва
Telegram/МАХ/WhatsApp
Звонок: 8 981 88 585 88
E-mail: evd@mediaservice.site
Для ООО – оплата по договору.
Для ИП, самозанятых и физ.лиц
НА САЙТЕ ЧЕРЕЗ РОБОКАССУ!
С получением чека об оплате!
Стоимость размещения:ЗДЕСЬ!
Деятельность Медиа-Сервис
О нас: “List-Org.com”
О нас: “Rusprofile






