Проект дома «ФРЕЙ»

Мечтаете о уютном загородном доме, где хватит места всей семье и гостям? Проект «ФРЕЙ» — отличное решение для дачи или загородного участка. Разберём, почему этот дом станет вашим любимым местом отдыха.

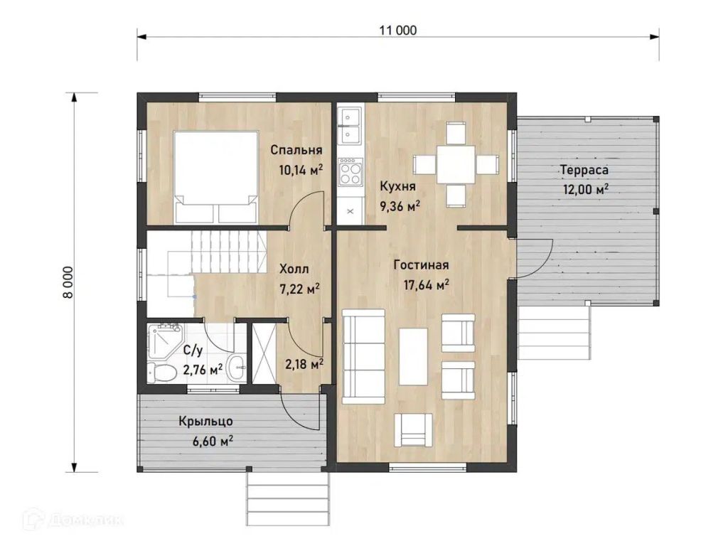
Ключевые характеристики
- Общая площадь: 106,75 м2.
- Площадь застройки: 64 м2 — компактный размер, который не «съест» много места на участке.
- Высота потолков: от 2,5 м — создаёт ощущение простора даже в небольших помещениях.
- Количество этажей: 2.
- Спальни: 4 — хватит для семьи с детьми или для приёма гостей.
- Санузлы: 2 — удобство для всех жильцов без утренних очередей.

Почему «ФРЕЙ» подходит для дачи и загородного дома?
- Оптимальная площадь. 106,75 м2 — достаточно для комфортного проживания, но не слишком много, чтобы тратить время и силы на уборку. Такой дом легко отапливать в прохладное время года, что особенно актуально для сезонного проживания на даче.
- Компактность и экономия места. Площадь застройки всего 64 м2 позволяет разместить дом даже на небольшом участке, оставив достаточно пространства для сада, огорода, зоны отдыха или детской площадки.
- Два этажа — рациональное использование пространства. Двухэтажная планировка:
- экономит место на участке;
- позволяет чётко разделить зоны: на первом этаже — общие помещения (кухня, гостиная), на втором — спальни для уединения и отдыха.
- Четыре спальни — место для всех. В доме комфортно разместятся:
- большая семья;
- гости на выходные;
- дети с друзьями на летние каникулы.
- Два санузла — удобство в повседневной жизни. Особенно актуально, если в доме одновременно находится много людей. Не придётся ждать, пока освободится ванная, — это делает проживание более комфортным.
- Высокие потолки от 2,5 м. Создают ощущение простора и свободы, визуально расширяют пространство. В таком доме не будет душно даже в жаркий летний день.
- Гибкость использования. Проект подходит как для:
- круглогодичного проживания;
- сезонного отдыха на даче;
- гостевого дома на большом участке.
- Простота обслуживания. Небольшая площадь и продуманная планировка облегчают уход за домом. Вы сможете тратить больше времени на отдых и меньше — на бытовые хлопоты.

Итог: проект «ФРЕЙ» сочетает в себе всё, что нужно для комфортной жизни за городом — компактность, функциональность и удобство. Это дом, где найдётся место для семейных ужинов, дружеских посиделок и спокойного отдыха на природе. Выбирайте «ФРЕЙ» и создавайте свою идеальную загородную жизнь!

Разместить/удалить пост
Редакция: 8 (812) 962 27 47
Рекламный: 8 981 88 585 88
ООО/ИП: оплата по договору
Для самозанятых: Робокасса
E-mail: evd@ms365.ru




