Проект «Семейный Барн»: идеальный дом для дачи или загородного участка

Если вы мечтаете о просторном, функциональном и стильном доме для семьи — проект «Семейный Барн» станет отличным решением для дачи или загородного участка. Рассмотрим, почему эта планировка отвечает ключевым запросам владельцев загородной недвижимости.
Ключевые параметры проекта
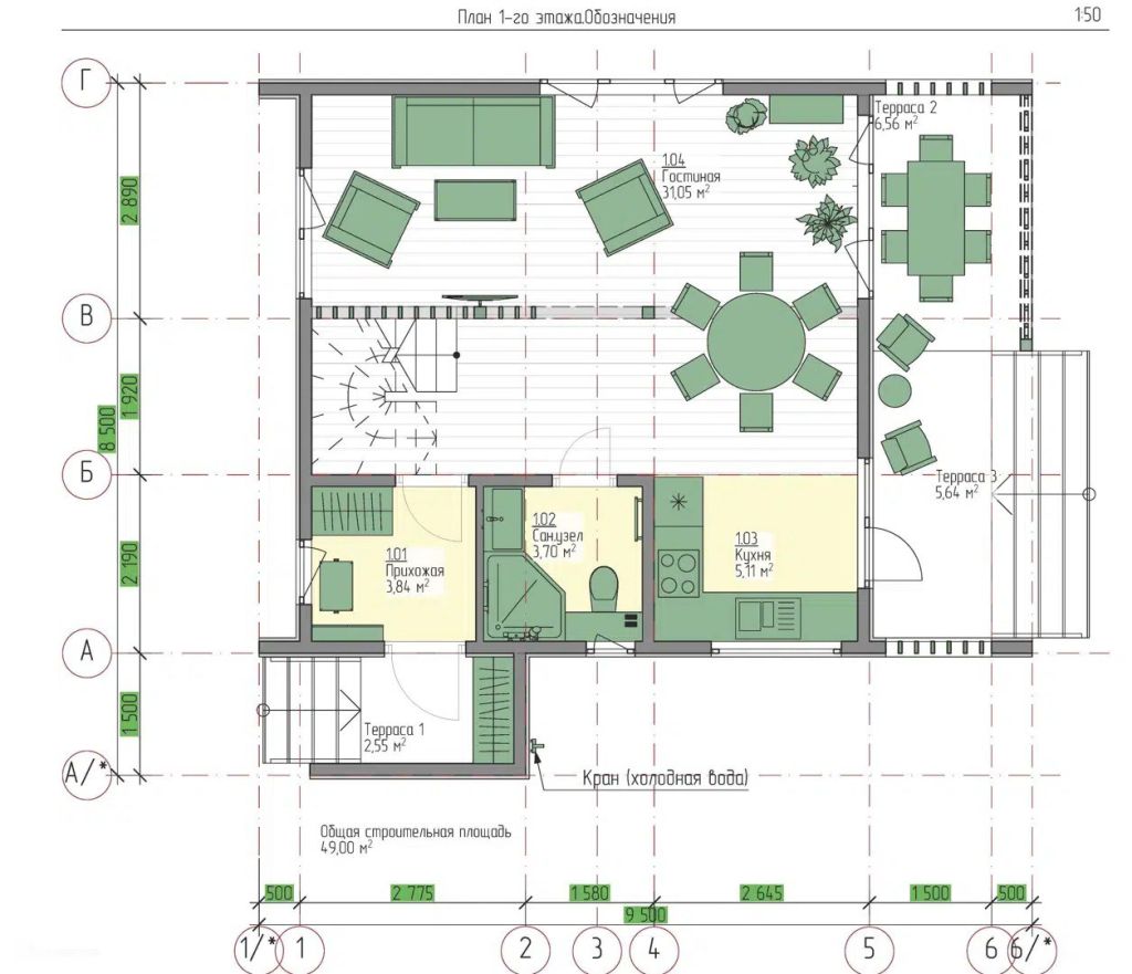
- Общая площадь: 107,8 м2.
- Площадь застройки: 80 м2.
- Высота потолков: от 2,8 м.
- Этажность: 2 этажа.
- Спальни: 3 комнаты.
- Санузлы: 2 помещения.
Почему «Семейный Барн» подходит для дачи и загородного дома?
- Оптимальная площадь
107,8 м2 — это достаточно пространства для комфортной жизни семьи, но без излишнего размаха. Такой дом не потребует огромных затрат на отопление и обслуживание, что особенно важно для сезонного проживания. - Рациональная планировка
- Три спальни позволяют разместить всех членов семьи с комфортом. Можно организовать:
- родительскую спальню;
- детскую комнату;
- гостевую или кабинет.
- Два санузла исключают утренние очереди и повышают удобство повседневной жизни.
- Три спальни позволяют разместить всех членов семьи с комфортом. Можно организовать:
- Высокие потолки (2,8 м)
Создают ощущение простора и свободы, визуально расширяют пространство. В загородном доме это особенно ценно: высокие потолки усиливают связь с природой и делают интерьер более воздушным. - Двухэтажная конструкция
- Позволяет чётко разделить зоны: на первом этаже — гостиная, кухня, санузел; на втором — спальни и второй санузел.
- Экономит площадь участка: при скромной застройке (80 м2) дом вмещает всё необходимое.
- Даёт возможность организовать террасу или балкон на втором этаже для отдыха с видом на сад.
- Универсальность стиля
Барнхаус — это лаконичность и современность. Такой дом органично впишется в любой ландшафт: от лесного участка до поля. Минималистичный фасад легко дополнить натуральными материалами (дерево, камень), чтобы подчеркнуть «загородную» эстетику. - Гибкость использования
Проект подходит как для:- постоянного проживания;
- сезонного отдыха (лето/выходные);
- приёма гостей (гостевая спальня + просторная общая зона).
- Экономия на строительстве и эксплуатации
- Компактная площадь застройки снижает затраты на фундамент и материалы.
- Чёткое зонирование помогает экономить на отоплении: можно прогревать только используемые помещения.

Итог
«Семейный Барн» — это баланс функциональности, стиля и практичности. Проект учитывает все ключевые потребности загородной жизни:
- достаточно места для семьи;
- удобство планировки;
- эстетика, гармонирующая с природой;
- разумные затраты на строительство и содержание.
Такой дом станет уютным убежищем для отдыха, местом для семейных праздников и пространством, где каждый найдёт свой уголок для комфорта.


Разместить/удалить пост
ООО/ИП оплата по договору
Самозанятые: РОБОКАССА
Редакция: 8 (812) 962 27 47
Рекламный: 8 981 88 585 88
Почта: evd@ms365.ru




