Проект «Просторный»: идеальный дом для дачи или загородного участка

Ищете дом, в котором хватит места и для семьи, и для гостей, и для уютных посиделок на природе? Представляем проект «Просторный» — продуманное решение для тех, кто ценит комфорт и функциональность.
Ключевые характеристики
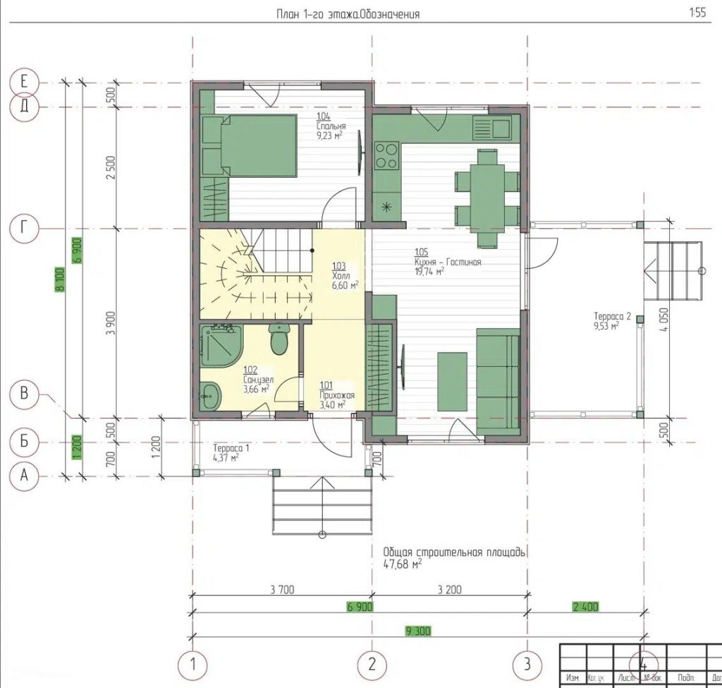
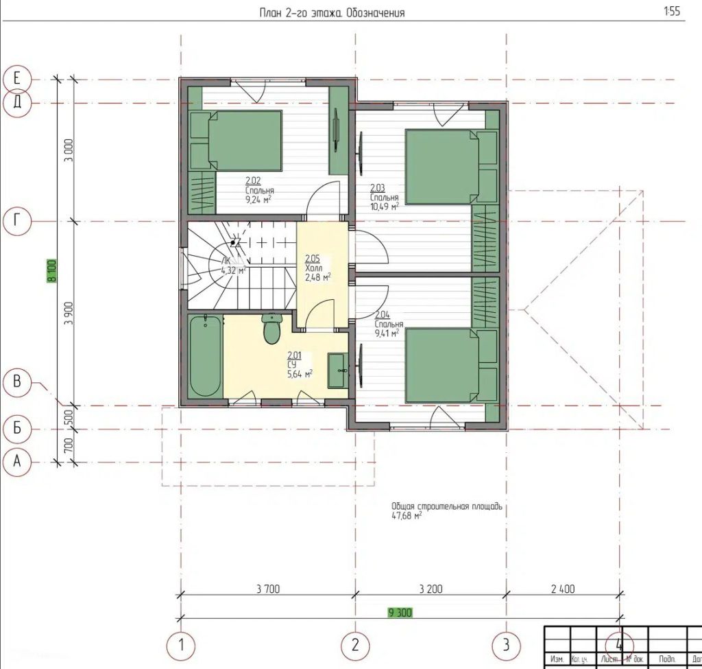
- Общая площадь: 98,1 м2.
- Площадь застройки: 75 м2.
- Высота потолков: от 2,8 м — создаёт ощущение простора и свободы.
- Количество этажей: 1 (в описании указано «2», но исходя из названия «1‑этажный дом», вероятно, опечатка; проект рассчитан на одноэтажную застройку).
- Спальни: 4 — достаточно для большой семьи или приёма гостей.
- Санузлы: 2 — удобство для всех жильцов без очередей.

Почему этот проект подойдёт для дачи или загородного дома?
- Оптимальная площадь
98,1 м2 — это достаточно пространства для комфортной жизни, но без излишеств, которые увеличивают затраты на строительство и отопление. Такой дом легко вписать в стандартный дачный участок, оставив место для сада, огорода или зоны отдыха. - Одноэтажная планировка
Отсутствие лестниц — большое преимущество для:- семей с маленькими детьми;пожилых людей;тех, кто хочет минимизировать риски травм.
- Четыре спальни
В доме комфортно разместятся:- большая семья;гости, приезжающие на выходные;родственники, которые любят подолгу гостить на даче.
- Два санузла
Практичное решение для семьи из 4–6 человек. Утром и вечером не придётся ждать своей очереди, а гости смогут пользоваться отдельным санузлом. - Высокие потолки (2,8 м)
- добавляют воздуха и света;
- позволяют использовать более выразительные элементы интерьера (например, массивные люстры или открытые балки);
- создают ощущение простора даже в небольших комнатах.
- Компактная площадь застройки (75 м2)
Дом не займёт весь участок — останется место для:- беседки или террасы;
- мангальной зоны;
- цветников или грядок;
- детской площадки или спортивного уголка.

Для кого этот проект?
- Для семей с детьми: безопасность одноэтажной планировки, достаточно комнат для всех.
- Для любителей гостеприимства: четыре спальни и два санузла — идеальный набор для приёма гостей.
- Для тех, кто ценит практичность: разумный баланс площади и функциональности, отсутствие лишних затрат на обслуживание.
- Для дачников, которые хотят жить с комфортом: все удобства городского жилья в загородной обстановке.
Итог
Проект «Просторный» — это гармония комфорта и рациональности. Он подходит тем, кто мечтает о загородном доме, где хватит места для семьи, друзей и любимых занятий. Благодаря продуманной планировке и оптимальным размерам, этот дом станет вашим уютным убежищем за городом на долгие годы.


Разместить/удалить пост
ООО/ИП оплата по договору
Самозанятые: РОБОКАССА
Редакция: 8 (812) 962 27 47
Рекламный: 8 981 88 585 88
Почта: evd@ms365.ru




