Проект «Роман»: дом, где мечты встречаются с комфортом!
Представьте себе идеальный одноэтажный дом — не замок с башнями, а уютное гнёздышко, где всё под рукой и ничто не мешает наслаждаться жизнью. Знакомьтесь: проект «Роман» — 102 м² чистого удовольствия!
Что у нас тут?
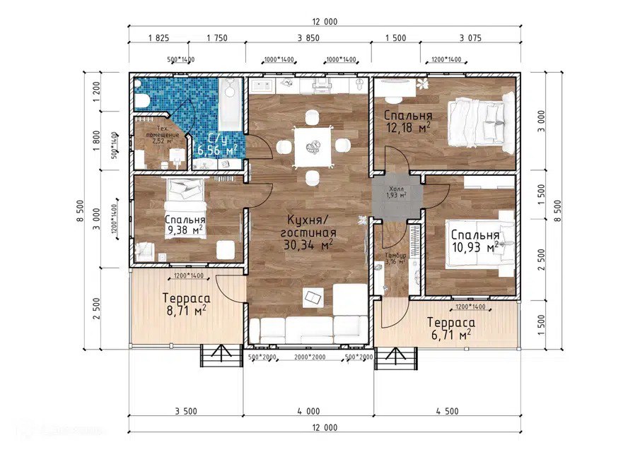
- Кухня‑гостиная (30,34 м²) — место, где рождаются кулинарные шедевры и весёлые посиделки. Панорамные окна добавляют драмы: закат? Пожалуйста! Снегопад? Наслаждайтесь! А площадь такая, что можно устроить дискотеку (или спрятаться от родственников — на ваше усмотрение).
- Три спальни — потому что выбор — это важно!
- Первая (12,18 м²) — для тех, кто любит спать, как король (или королева).
- Вторая (10,93 м²) — для романтиков, мечтателей и любителей книг.
- Третья (9,38 м²) — компактная, но уютная: идеально для ребёнка или гостя, который «заехал на пару дней» (и остался на месяц).
- Ванная (6,56 м²) — тут можно не просто умыться, а устроить полноценный спа‑ритуал. Или попеть в душе — акустика гарантирована!
- Две террасы — потому что одна — хорошо, а две — лучше!
- Первая (8,71 м²) — для утреннего кофе и философских раздумий.
- Вторая (6,71 м²) — для вечерних посиделок с друзьями и шашлыков (ну а как без них?).
А теперь — вишенки на торте:
- Фундамент под шлифованный гранит — чтобы дом стоял крепко, как скала (и выглядел стильно).
- Деревянный каркас чёрного цвета — элегантно, современно, и комары точно подумают дважды, прежде чем залететь.
- Высота потолков от 2,6 м — можно прыгать от радости или размахивать руками, объясняя что‑то важное, — ничто не помешает!
- Один этаж — никаких лестниц, никаких «ой, я забыл наверху»! Всё на уровне земли — удобно и безопасно.
Итого: проект «Роман» — это дом, где:
- утро начинается с кофе на террасе,
- вечера — с тёплых посиделок в гостиной,
- сны — в уютных спальнях,
- а жизнь — в комфорте и стиле.
Хотите так же? Тогда «Роман» ждёт вас!



Разместить/удалить информацию:
В рабочие дни: 11-19 Москва
Telegram/МАХ/WhatsApp
Звонок: 8 981 88 585 88
E-mail: evd@mediaservice.site
Для ООО – оплата по договору.
Для ИП, самозанятых и физ.лиц
НА САЙТЕ ЧЕРЕЗ РОБОКАССУ!
С получением чека об оплате!
Стоимость размещения:ЗДЕСЬ!
Деятельность Медиа-Сервис
О нас: “List-Org.com”
О нас: “Rusprofile




